Мы используем куки-файлы. Соглашение об использовании
Площадь930 м²
Этажность3
КлассB
Отчёт о привлекательности объектаУзнайте, насколько помещение и район подходят для вашего бизнеса
Что входит в отчёт
  • Охват населения
  • Пешеходный трафик
  • Автомобильный трафик
  • Средний бюджет семьи по району
  • Арендные ставки рядом
  • Точки притяжения
  • Конкуренты в радиусе 1 км
  • Рекомендации по выбору места для бизнеса
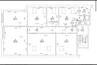
Продажа трехэтажного отдельно стоящего здания. Первый этаж 340 м2 сдан в аренду Озон Фреш, МАП 1,1 млн, договор на 5 лет, индексация 7%. Осталось вакантная площадь 590 м2 сдана под хостел МАП 1,2 млн рублей . Общий арендный доход 2,3 млн рублей в месяц Своя котельная - есть газ. парковка на 8 мм, 45 КВт (в процессе оформления на 150 кВт дополнительно). Высота потолков от 3 до 3,6 м. Под любой вид деятельности. 1 этаж - 356,6 м2 2 этаж - 359,4 м2 + мансарда - 200 м2 Договор аренды ЗУ: 49 лет ВРИ: торговля, общепит, медицина, деловое обслуживание, производство.
lock

Войдите или зарегистрируйтесь
для просмотра информации

Просматривайте условия сделки и всю информацию об объекте
Сохраняйте фильтры в поиске и не вводите заново
Доступ к избранному с любого устройства
Неограниченное добавление в избранное
Позвоните автору
Вам ответят на все вопросы
Остались вопросы по объявлению?
Позвоните владельцу объявления и уточните необходимую информацию.
  • Инфраструктура
  • Похожие рядом
Приточная вентиляция
Местное кондиционирование
Автономное отопление
Сигнализация
Помощь надёжных риелторов
Риелтор партнёр Циан поможет купить или продать любую недвижимость
РиелторАлёна Котляр
Суперагент
  • 5,0・6
  • 7 лет 10 месяцев на Циане
  • 74 объявления
  • 230 000 000 ₽
    3 095 713 $
    2 597 432
    Цена за метр
    247 312 ₽
    Налог
    УСН
    РиелторАлёна Котляр
    Суперагент