Мы используем куки-файлы. Соглашение об использовании

Продается арендный бизнес, 6 383 м²

Площадь6 383 м²
Этаж1
КатегорияТорговая площадь, свободное назначение, стрит ритейл и еще 1 категория...
Отчёт о привлекательности объектаУзнайте, насколько помещение и район подходят для вашего бизнеса
Что входит в отчёт
  • Охват населения
  • Пешеходный трафик
  • Автомобильный трафик
  • Средний бюджет семьи по району
  • Арендные ставки рядом
  • Точки притяжения
  • Конкуренты в радиусе 1 км
  • Рекомендации по выбору места для бизнеса
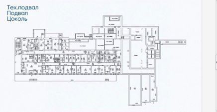
Лот 905947-Г Предложение от Собственника! Возможно использовать как арендный бизнес. Предлагается к продаже отдельно стоящее здание общей площадью 6383 м². Объект отличается кабинетной планировкой, высотой потолков от 2,7 до 3.9 м и наличием 15 отдельных входных групп. Здание оснащено современными системами: пожарной и охранной сигнализацией, кондиционированием, видеонаблюдением. Перед зданием оборудована парковка. Площадь распределена по этажам следующим образом: первый этаж — 1486,1 м², антресоль первого этажа — 63,8 м², технический этаж — 399,1 м², технический этаж 1 — 120,3 м². Второй этаж — 368,9 м², третий — 358,8 м², четвёртый — 369,3 м², пятый — 365,3 м², шестой — 364,8 м², седьмой — 360,6 м², восьмой — 371,9 м², девятый — 369 м². Подвальные помещения включают подвал площадью 259,6 м², цоколь — 903,2 м² и технический подвал — 281,4 м². Объект обладает электрической мощностью 450 кВт, подключён к центральным коммуникациям, отопление обеспечивается газовой котельной. Здание расположено в удобном и доступном месте. Чтобы получить ПОДРОБНУЮ ПРЕЗЕНТАЦИЮ С ПЛАНИРОВКОЙ И ФОТОГРАФИЯМИ, звоните или отправьте свой email и номер телефона в сообщении на портале. Высылаем в течение 15 минут по запросу! Конт. лицо: Алексей Юрьевич, доб. 248, ЛОТ 905947-Г
lock

Войдите или зарегистрируйтесь
для просмотра информации

Просматривайте условия сделки и всю информацию об объекте
Сохраняйте фильтры в поиске и не вводите заново
Доступ к избранному с любого устройства
Неограниченное добавление в избранное
Позвоните автору
Вам ответят на все вопросы
Остались вопросы по объявлению?
Позвоните владельцу объявления и уточните необходимую информацию.
  • Инфраструктура
  • Похожие рядом
Помощь надёжных риелторов
Риелтор партнёр Циан поможет купить или продать любую недвижимость
815 000 000 ₽
11 475 253 $
9 862 423
Цена за метр
127 683 ₽
Налог
НДС включен: 146 967 213 ₽
Агентство недвижимости
На Циан
17 лет
Объектов в работе
более 5000
Риелтор
Суперагент