Мы используем куки-файлы. Соглашение об использовании
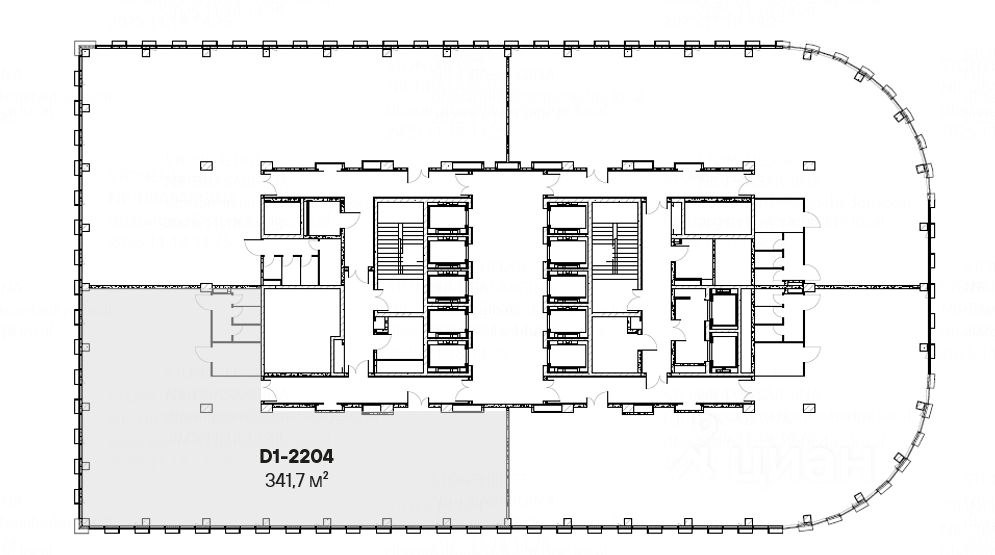
Площадь341,7 м²
Этаж22 из 24
КлассA
Отчёт о привлекательности объектаУзнайте, насколько помещение и район подходят для вашего бизнеса
Что входит в отчёт
  • Охват населения
  • Пешеходный трафик
  • Автомобильный трафик
  • Средний бюджет семьи по району
  • Арендные ставки рядом
  • Точки притяжения
  • Конкуренты в радиусе 1 км
  • Рекомендации по выбору места для бизнеса
ПРОДАЖА представительского офиса в бизнес-центре класса А STONE Савеловская в высокой строительной готовности. Срок реализации 2025 год. Бизнес-центр представляет собой две 24-этажные офисные башни, объединенные двухуровневым стилобатом. Общая наземная площадь проекта составит 92 000 м2 Характеристики: Планировки офисных этажей соответствуют всем современным требованиям функционального офисного пространства, что позволит организовать любую рассадку сотрудников без снижения уровня комфорта. Увеличенная площадь остекления обеспечит оптимальный уровень инсоляции. - Башня: Tower 1 - Этаж 22/24 - Площадь: 341,7 м2 - Высота потолков от 3,65 - Глубина этажа до 10 м. - Мокрая точка - Шаг колонн 8,4*8,4 - Остекление в пол - Возможность естественного проветривания - Современные инженерные системы - Концепция здорового строительства - Отделка Shell&Core - Собственная инфраструктура: столовая, кафе и рестораны, фитнес-центр, торговая галерея - Благоустроенная территория для работы на открытом воздухе - Подземный, наземный, гостевой паркинг Транспортная доступность: - 7 мин. пешком от м. "Савеловская" (кольцевая и радиальная линии) - 7 мин. пешком до МЦД-1 с аэроэкспрессом до Шереметьево и до строящейся станции МЦД-4 - 13 мин. пешком до м. "Марьина Роща" - 15 мин. до "Москва-Сити" без пересадок - 500 м от ТТК STONE — девелопер коммерческой и жилой недвижимости классов бизнес и премиум в Москве с 18-летним опытом. С 2022 года занимает лидирующую позицию на офисном рынке (рейтинг РБК). Сегодня в портфеле девелопера представлено 2,5 млн кв. м построенных, строящихся и проектируемых объектов, из которых более 850 тыс. кв. м находятся в стадии строительства. Компания имеет самый масштабный проектный портфель офисной недвижимости класса А на московском рынке (данные NF Group) и возглавляет топ-6 устойчивых девелоперов, согласно исследованию FResearch Forbes. В настоящий момент девелопером представлено 15 бизнес-центров класса А, а также 3 жилых комплекса бизнес+ класса.
lock

Войдите или зарегистрируйтесь
для просмотра информации

Просматривайте условия сделки и всю информацию об объекте
Сохраняйте фильтры в поиске и не вводите заново
Доступ к избранному с любого устройства
Неограниченное добавление в избранное
Позвоните автору
Вам ответят на все вопросы
Остались вопросы по объявлению?
Позвоните владельцу объявления и уточните необходимую информацию.
  • Инфраструктура
  • Похожие рядом
  • Общая площадь341,7 м²
Помощь надёжных риелторов
Риелтор партнёр Циан поможет купить или продать любую недвижимость
Агентство недвижимости
Суперагент
181 101 000 ₽
2 437 551 $
2 045 207
Цена за метр
530 000 ₽
Налог
УСН
Агентство недвижимости
Суперагент
На Циан
6 лет
Объектов в работе
222