Мы используем куки-файлы. Соглашение об использовании

Офисное здание_ЦАО_набережная

Площадь959,5 м²
Этажность4
КлассB
Год постройки1903
Отчёт о привлекательности объектаУзнайте, насколько помещение и район подходят для вашего бизнеса
Что входит в отчёт
  • Охват населения
  • Пешеходный трафик
  • Автомобильный трафик
  • Средний бюджет семьи по району
  • Арендные ставки рядом
  • Точки притяжения
  • Конкуренты в радиусе 1 км
  • Рекомендации по выбору места для бизнеса
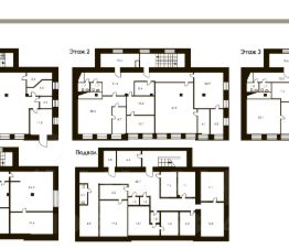
Прямая продажа здания от собственника. Продается особняк (4 этажа) - 959,5 кв.м (5 мин. пешком от м. "Новокузнецкая") в Замоскворечье в 1,5 км от Кремля. Здание с земельным участком в 0,3 Га расположено на Озерковской набережной в центре исторического района Москвы в 5 минутах ходьбы от станции метро Новокузнецкая с максимально развитой инфраструктурой: рестораны, бары, кафе, главные культурно-досуговые центры, салоны красоты, спа-центры. Здание с высококачественной отделкой как внутри, так и снаружи и удобной планировкой, позволяет разместить сотрудников в соответствии с принадлежностью к тому или иному отделу. ХАРАКТЕРИСТИКИ • Площадь особняка 959,5 м² • Высота потолков до 3,5 м. • Парадный вход с набережной. • Отдельный вход со двора. • Высококлассное инженерно-техническое оснащение. • Офисная отделка с коридорно-кабинетной планировкой. • Парковка автотранспорта возможна на прилегающих к нему территориях. РАССТОЯНИЕ ДО: • Станции метро Новокузнеская - 500 м • Станции метро Третьяковская - 700 м • Станции метро Павелецкая - 1 км • Садовое кольцо - 1 км • Кремль - 1,5 км Знаменитый район Замоскворечье, раскинувшийся на правом берегу реки Москвы, к югу от Кремля является безусловным преимуществом для особняка и даёт возможность удобно добраться ко всем основным достопримечательностям центра Москвы, а также основным транспортным магистралям. ИНЖЕНЕРНЫЕ СИСТЕМЫ • Центральная система вентиляции • Система кондиционирования (сплит-системы). • Система видеонаблюдения и контроля доступа. • Спринклерная система пожаротушения. • Охранная и пожарная сигнализация. • Оповещение о пожаре. • Индивидуальный тепловой пункт. • Электрическая мощность (II категории) - 160 кВт. Спокойный и уютный двор с озеленением, которое окружает здание, позволит уединиться и отдохнуть от городской суеты. Комфортные условия труда в помещениях поддерживаются за счет наличия централизованной приточно-вытяжной вентиляции и сплит-системам кондиционирования.
lock

Войдите или зарегистрируйтесь
для просмотра информации

Просматривайте условия сделки и всю информацию об объекте
Сохраняйте фильтры в поиске и не вводите заново
Доступ к избранному с любого устройства
Неограниченное добавление в избранное
Позвоните автору
Вам ответят на все вопросы
Остались вопросы по объявлению?
Позвоните владельцу объявления и уточните необходимую информацию.
  • Инфраструктура
  • Похожие рядом
Естественная вентиляция
Центральное кондиционирование
Центральное отопление
Спринклерная система пожаротушения
Помощь надёжных риелторов
Риелтор партнёр Циан поможет купить или продать любую недвижимость
Отдел арендыID 136853186
  • Документы проверены
  • 6 месяцев на Циане
  • 2 объявления
  • 600 000 000 ₽
    8 180 852 $
    6 984 728
    Цена за метр
    625 326 ₽
    Налог
    НДС включен: 108 196 721 ₽
    Отдел арендыID 136853186
    Документы проверены