Мы используем куки-файлы. Соглашение об использовании
Площадь570 м²
Этаж1 из 5
Парковка3 места
КлассA
Отчёт о привлекательности объектаУзнайте, насколько помещение и район подходят для вашего бизнеса
Что входит в отчёт
  • Охват населения
  • Пешеходный трафик
  • Автомобильный трафик
  • Средний бюджет семьи по району
  • Арендные ставки рядом
  • Точки притяжения
  • Конкуренты в радиусе 1 км
  • Рекомендации по выбору места для бизнеса
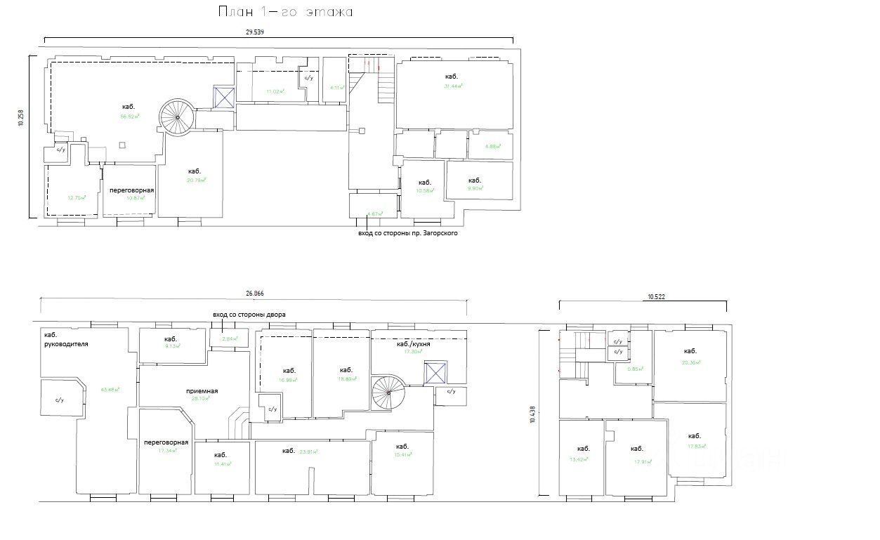
Продаётся офисное помещение на пересечении Аминьевского/Можайского/ Рублевского шоссе и Кутузовского проспекта. В относительной близости станции метро Кунцевская и Давыдково. Офис общей площадью 570 кв.м. с кабинетной планировкой и наличием мебели. 2 входа с разных сторон (со стороны двора и с улицы), двери на магнитных замках; Охраняемая закрытая территория, въезд по пропускам - доступ 24/7. Без ограничения доступа; 3 м/м в подземном паркинге в собственности и 3 м/м сверху у входа в офис в аренде + гостевая парковка; Сам офис оснащен системой вентиляции, кондиционирования, пожарной сигнализацией; В наличии 6 мокрых точек под с/у, 2 комнаты с возможностью использования под обеденную зону; Офис легко делится на разные зоны в зависимости от рабочих и технических задач; Рядом парковая зона, в непосредственной близости отделение банка, пвз, салон красоты, ВкусВилл. На данный момент на части офиса в 200 кв.м., располагается арендатор (все подробности по финансовой составляющей при личной встрече с собственником). Все документы в полном порядке и готовы к сделке. 1 собственник, полная сумма в договоре.
lock

Войдите или зарегистрируйтесь
для просмотра информации

Просматривайте условия сделки и всю информацию об объекте
Сохраняйте фильтры в поиске и не вводите заново
Доступ к избранному с любого устройства
Неограниченное добавление в избранное
Позвоните автору
Вам ответят на все вопросы
Остались вопросы по объявлению?
Позвоните владельцу объявления и уточните необходимую информацию.
  • Инфраструктура
  • Похожие рядом
  • Тип зданияЖилой комплекс
  • Общая площадь570 м²
Приточная вентиляция
Местное кондиционирование
Центральное отопление
Сигнализация
Помощь надёжных риелторов
Риелтор партнёр Циан поможет купить или продать любую недвижимость
Автор объявленияЕгор Доброскокин
Суперагент
  • 15 лет 9 месяцев на Циане
  • 1 объявление
  • 230 000 000 ₽
    3 074 809 $
    2 594 681
    Цена за метр
    403 509 ₽
    Налог
    УСН
    Автор объявленияЕгор Доброскокин
    Суперагент