Мы используем куки-файлы. Соглашение об использовании

Продается арендный бизнес, 413 м²

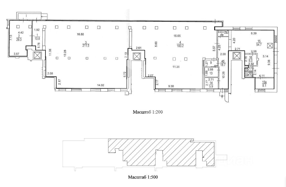
Площадь413 м²
Этаж-1
Прибыль650 000 ₽/мес.
КатегорияТорговая площадь, свободное назначение, стрит ритейл и еще 1 категория...
Отчёт о привлекательности объектаУзнайте, насколько помещение и район подходят для вашего бизнеса
Что входит в отчёт
  • Охват населения
  • Пешеходный трафик
  • Автомобильный трафик
  • Средний бюджет семьи по району
  • Арендные ставки рядом
  • Точки притяжения
  • Конкуренты в радиусе 1 км
  • Рекомендации по выбору места для бизнеса
1092016. Предлагаем помещение свободного назначения с арендатором Яндекс Лавка, площадью 413 кв. м., расположенное в цокольном этаже жилого дома. Без комиссии для покупателя. Преимущества объекта: -18 минут пешком от станции метро Кунцевская и 7 минут пешком от станции МЦД-1 Рабочий Посёлок; -густонаселённый жилой массив; -сложившееся торговое окружение; -интенсивный автомобильный и пешеходный трафик; -объект отлично просматривается, находится в легком доступе для клиентов; -надежный сетевой арендатор; -смешанная планировка; -выполнен свежий ремонт, узаконена перепланировка; -все центральные коммуникации; -вентиляция: приточно-вытяжная, кондиционирование: сплит-системы, безопасность: круглосуточный доступ, система пожаротушений, видеонаблюдение; -оборудованная зона погрузки/разгрузки; -место для вывески; -наземная парковка; -рядом остановки общественного транспорта. Технические параметры объекта: -2 отдельные входные группы; -электрическая мощность: 60 кВт. Информация об арендаторе: -арендатор: Яндекс Лавка; -прибыль: 650 000 руб./мес. Свяжитесь с нами для получения дополнительной информации!
lock

Войдите или зарегистрируйтесь
для просмотра информации

Просматривайте условия сделки и всю информацию об объекте
Сохраняйте фильтры в поиске и не вводите заново
Доступ к избранному с любого устройства
Неограниченное добавление в избранное
Позвоните автору
Вам ответят на все вопросы
Остались вопросы по объявлению?
Позвоните владельцу объявления и уточните необходимую информацию.
  • Инфраструктура
  • Похожие рядом
Помощь надёжных риелторов
Риелтор партнёр Циан поможет купить или продать любую недвижимость
65 000 000 ₽
910 728 $
776 684
Цена за метр
157 385 ₽
Налог
УСН
Агентство недвижимости
Документы проверены