Мы используем куки-файлы. Соглашение об использовании
Площадь840 м²
Этаж1 из 31
КлассB
Отчёт о привлекательности объектаУзнайте, насколько помещение и район подходят для вашего бизнеса
Что входит в отчёт
  • Охват населения
  • Пешеходный трафик
  • Автомобильный трафик
  • Средний бюджет семьи по району
  • Арендные ставки рядом
  • Точки притяжения
  • Конкуренты в радиусе 1 км
  • Рекомендации по выбору места для бизнеса
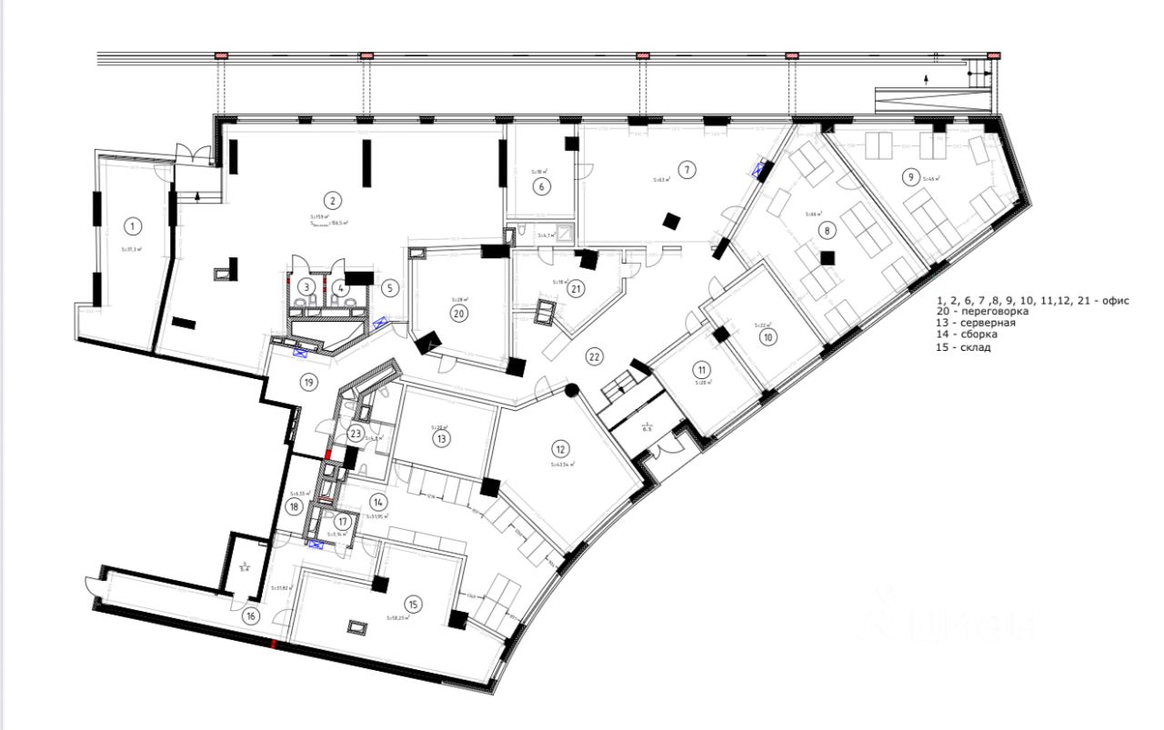
ЖК "Утесов" Продажа просторного помещения площадью 840 квадратных метров, которое может быть использовано под любой вид Вашего бизнеса или Ваших арендаторов. Оптимальное решение для стабильного бизнеса или выгодных инвестиций. Расположение: в ЗАО среди ключевых магистралей (Можайское, Рублевское, Кутузовское шоссе, МКАД), 1 этаж жилого комплекса, имеет потрясающие видовые характеристики в сторону Карамышевской набережной и Москва-Сити. Преимущества: - отличная планировка; - большое количество окон; - 3 входные группы; - потолки 4 метра; - множество санузлов; - возможность спланировать любую планировку и сделать чистовую отделку под свой вид бизнеса; -12 минут пешком метро Народного ополчения, в конце 2026г. в шаговой доступности будет отрыта новая станция метро Рублево-Архангельской линии. Коммуникации: - отопление централизованное; - водоснабжение централизованное; - мощность 40 кВт., возможно увеличить мощность до 80 кВт. Безопасность: огороженная территория, пропускная система, круглосуточная охрана и видеонаблюдение обеспечивают высокий уровень безопасности. Парковочные места: бесплатная краткосрочная наземная парковка, подземный паркинг (аренда или покупка мест в многоуровневом подземном паркинге), городская парковка. Это предложение выглядит привлекательным для тех, кто ищет просторное помещение для бизнеса, особенно если речь идет о медицинском центре или офисе с высокими требованиями к инфраструктуре и комфорту.
lock

Войдите или зарегистрируйтесь
для просмотра информации

Просматривайте условия сделки и всю информацию об объекте
Сохраняйте фильтры в поиске и не вводите заново
Доступ к избранному с любого устройства
Неограниченное добавление в избранное
Позвоните автору
Вам ответят на все вопросы
Остались вопросы по объявлению?
Позвоните владельцу объявления и уточните необходимую информацию.
  • Инфраструктура
  • Похожие рядом
  • Общая площадь840 м²
Местное кондиционирование
Центральное отопление
Гидрантная система пожаротушения
Помощь надёжных риелторов
Риелтор партнёр Циан поможет купить или продать любую недвижимость
РиелторТатьяна Калинова
Суперагент
  • 4,3・12
  • 14 лет 6 месяцев на Циане
  • 11 объявлений
  • 255 000 000 ₽
    3 487 061 $
    2 993 556
    Цена за метр
    303 572 ₽
    Налог
    НДС включен: 45 983 606 ₽
    РиелторТатьяна Калинова
    Суперагент