Мы используем куки-файлы. Соглашение об использовании
Площадь481,7 м²
Этаж1 из 1
ПомещениеСвободно
Отчёт о привлекательности объектаУзнайте, насколько помещение и район подходят для вашего бизнеса
Что входит в отчёт
  • Охват населения
  • Пешеходный трафик
  • Автомобильный трафик
  • Средний бюджет семьи по району
  • Арендные ставки рядом
  • Точки притяжения
  • Конкуренты в радиусе 1 км
  • Рекомендации по выбору места для бизнеса
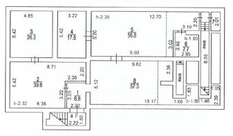
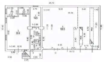
СОБСТВЕННИКИ! Предлагается к продаже 1-этажное здание площадью 481,7 м2 в 100 метрах от ст. МЦК Лихоборы. Объект располагается на закрытой охраняемой территории с парковкой. Здание занимает арендатор - автосервис. Подходит под склад/производство/автосервис/шиномонтаж. Характеристики здания: - Площадь по этажам: 1 эт. - 267,5 м2, подвал - 214,2 м2; - Высота потолков: 1 эт. - 2,9-3,9, подвал - 2,4 м; - 5 входов в здание, а также 1 вход в подвал, плюс 2 въездных ворот; - электричество 150 кВт, ХВС; - Собственная парковка на закрытой, охраняемой территории; - Удобный заезд с Дмитровского ш., съезд с Алтуфьевского ш. и ул. Хачатуряна.
lock

Войдите или зарегистрируйтесь
для просмотра информации

Просматривайте условия сделки и всю информацию об объекте
Сохраняйте фильтры в поиске и не вводите заново
Доступ к избранному с любого устройства
Неограниченное добавление в избранное
Позвоните автору
Вам ответят на все вопросы
Остались вопросы по объявлению?
Позвоните владельцу объявления и уточните необходимую информацию.
  • Инфраструктура
  • Похожие рядом
  • Общая площадь481,7 м²
Помощь надёжных риелторов
Риелтор партнёр Циан поможет купить или продать любую недвижимость
РиелторАртем Ченцов
Суперагент
  • 6 лет 6 месяцев на Циане
  • 70 объявлений
  • 72 255 000 ₽
    950 055 $
    806 188
    Цена за метр
    150 000 ₽
    Налог
    НДС включен: 13 029 590 ₽
    РиелторАртем Ченцов
    Суперагент