Мы используем куки-файлы. Соглашение об использовании
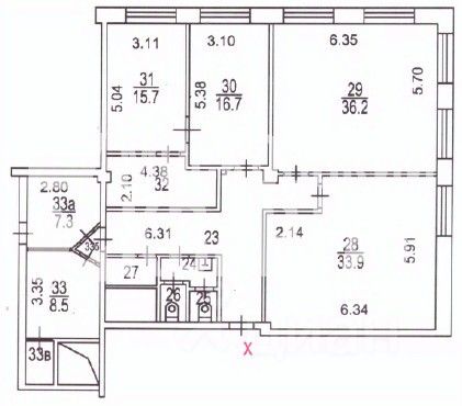
Площадь157,2 м²
Этаж2 из 2
ПомещениеСвободно
Отчёт о привлекательности объектаУзнайте, насколько помещение и район подходят для вашего бизнеса
Что входит в отчёт
  • Охват населения
  • Пешеходный трафик
  • Автомобильный трафик
  • Средний бюджет семьи по району
  • Арендные ставки рядом
  • Точки притяжения
  • Конкуренты в радиусе 1 км
  • Рекомендации по выбору места для бизнеса
Код объекта: 1985352. Готовое офисное помещение с дизайнерским ремонтом — формат "заезжай и работай". Помещение полностью меблировано и оснащено техникой: рабочие столы, шкафы, стулья, ноутбуки, телевизоры, кондиционеры. Возможна продажа как с полным текущим оснащением, так и в пустом виде — под ваш бизнес-сценарий. Выполнен дизайнерский ремонт, потолки 3 метра, хорошая инсоляция, комфортная рабочая атмосфера. По всему помещению установлена система видеонаблюдения. Планировка функциональная и редкая для офисов: две аудитории под групповую работу, переговорная, комната администратора, кладовая, детская игровая, серверная, сейфовая комната, раздельный санузел, прихожая. Пространство легко адаптируется под образовательный центр, офис компании, медицинские или консультационные услуги, IT-проект, школу или студию. Локация удачная — ул. 3-я Бухвостова, дом 4. Район с устойчивым пешеходным и автомобильным трафиком, удобные подъездные пути, сформированная деловая и жилая среда. Хорошая транспортная доступность и понятная навигация для клиентов и сотрудников. Один совершеннолетний собственник, свободная продажа.
lock

Войдите или зарегистрируйтесь
для просмотра информации

Просматривайте условия сделки и всю информацию об объекте
Сохраняйте фильтры в поиске и не вводите заново
Доступ к избранному с любого устройства
Неограниченное добавление в избранное
Позвоните автору
Вам ответят на все вопросы
Остались вопросы по объявлению?
Позвоните владельцу объявления и уточните необходимую информацию.
  • Инфраструктура
  • Похожие рядом
Помощь надёжных риелторов
Риелтор партнёр Циан поможет купить или продать любую недвижимость
50 000 000 ₽
659 168 $
560 189
Цена за метр
318 067 ₽
Налог
НДС включен: 9 016 393 ₽
Агентство недвижимости
На Циан
17 лет
Объектов в работе
81
Риелтор
Суперагент
5,0・5