Мы используем куки-файлы. Соглашение об использовании

Продается арендный бизнес, 140 м²

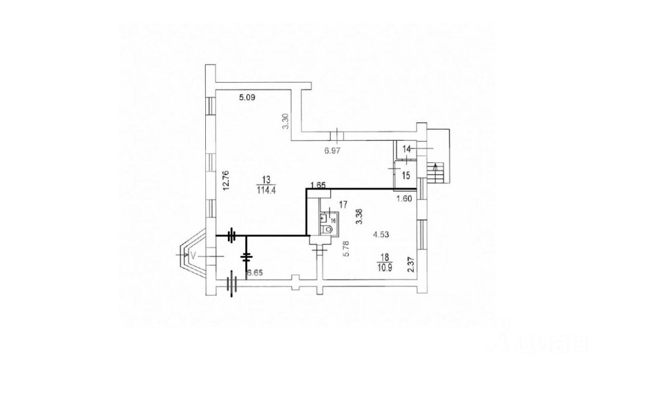
Площадь140 м²
Этаж1
Прибыль538 000 ₽/мес.
КатегорияТорговая площадь, свободное назначение, стрит ритейл и еще 1 категория...
Отчёт о привлекательности объектаУзнайте, насколько помещение и район подходят для вашего бизнеса
Что входит в отчёт
  • Охват населения
  • Пешеходный трафик
  • Автомобильный трафик
  • Средний бюджет семьи по району
  • Арендные ставки рядом
  • Точки притяжения
  • Конкуренты в радиусе 1 км
  • Рекомендации по выбору места для бизнеса
682688. Предлагаем торговое помещение с арендаторами Аптека и Медицинские анализы, площадью 140 кв. м., расположенное на первом этаже 5-этажного жилого дома. Без комиссии для покупателя. Преимущества объекта: -первая линия; -15 минут пешком от станции МЦК Коптево; -густонаселённый жилой массив; -сложившееся торговое окружение; -высокий автомобильный и пешеходный трафик; -объект отлично просматривается, находится в лёгком доступе для клиентов; -открытая планировка, сделан ремонт; -место для вывески; -зона разгрузки/погрузки; -напротив помещения городская парковка; -рядом остановки общественного транспорта. Технические параметры объекта: -отдельный вход с улицы; -электрическая мощность: 30 кВт; -высота потолков: 3 м. Информация об арендаторах: -арендаторы: Аптека (КДА, МАП 378 000 руб.) и Медицинские анализы (ДДА, МАП 160 000 руб.); -доход: 538 000 руб./мес. Свяжитесь с нами для получения дополнительной информации!
lock

Войдите или зарегистрируйтесь
для просмотра информации

Просматривайте условия сделки и всю информацию об объекте
Сохраняйте фильтры в поиске и не вводите заново
Доступ к избранному с любого устройства
Неограниченное добавление в избранное
Позвоните автору
Вам ответят на все вопросы
Остались вопросы по объявлению?
Позвоните владельцу объявления и уточните необходимую информацию.
  • Инфраструктура
  • Похожие рядом
Помощь надёжных риелторов
Риелтор партнёр Циан поможет купить или продать любую недвижимость
70 000 000 ₽
918 047 $
785 306
Цена за метр
500 000 ₽
Налог
УСН
Агентство недвижимости
Документы проверены