Мы используем куки-файлы. Соглашение об использовании
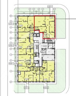
Торговая площадь, 111,5 м²
Площадь111,5 м²
Этаж1 из 24
ПомещениеСвободно
Отчёт о привлекательности объектаУзнайте, насколько помещение и район подходят для вашего бизнеса
Что входит в отчёт
  • Охват населения
  • Пешеходный трафик
  • Автомобильный трафик
  • Средний бюджет семьи по району
  • Арендные ставки рядом
  • Точки притяжения
  • Конкуренты в радиусе 1 км
  • Рекомендации по выбору места для бизнеса
1104124. Предлагаем помещение свободного назначения в ЖК "Лучи", площадью 111.5 кв. м, расположенное на первом этаже 24-этажного жилого дома. Корпус 7. Так как корректный адрес отсутствует на Яндекс.Картах, введен ближайший. Без комиссии для покупателя. Преимущества объекта: -ЖК состоит из 16 корпусов переменной этажности (от 19 до 24 этажей), рассчитанных на 14 361 квартиру; -шаговая доступность от станции метро "Боровское шоссе" (15 минут пешком); -удобная транспортная доступность: 1.6 км до Боровского шоссе, 4 км до Киевского шоссе, 5 км до МКАД; -плотный жилой массив; -развитая инфраструктура района; -высокий автомобильный и пешеходный трафик; -отлично просматривается, находится в легком доступе для потенциальных клиентов; -гибкая планировка, позволяющая адаптировать пространство под различные нужды; -3 мокрые точки; -витринное остекление; -возможность размещения вывески; -парковка на территории комплекса. Технические параметры объекта: -отдельный вход с фасада. -электрическая мощность: 22 кВт. -высота потолков: 3.9 м. Срок сдачи: II кв. 2027 Свяжитесь с нами для получения дополнительной информации!
lock

Войдите или зарегистрируйтесь
для просмотра информации

Просматривайте условия сделки и всю информацию об объекте
Сохраняйте фильтры в поиске и не вводите заново
Доступ к избранному с любого устройства
Неограниченное добавление в избранное
Позвоните автору
Вам ответят на все вопросы
Остались вопросы по объявлению?
Позвоните владельцу объявления и уточните необходимую информацию.
  • Инфраструктура
  • Похожие рядом
  • Тип зданияЖилой комплекс
  • Категория зданияСтроящееся
  • Общая площадь111,5 м²
Приточная вентиляция
Центральное кондиционирование
Помощь надёжных риелторов
Риелтор партнёр Циан поможет купить или продать любую недвижимость
42 034 496 ₽
527 216 $
455 948
Цена за метр
376 991 ₽
Налог
УСН
Агентство недвижимости
Документы проверены