Мы используем куки-файлы. Соглашение об использовании
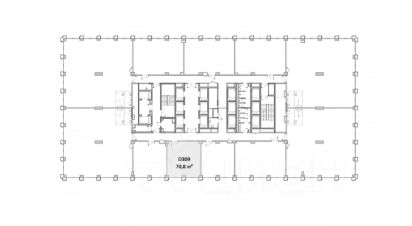
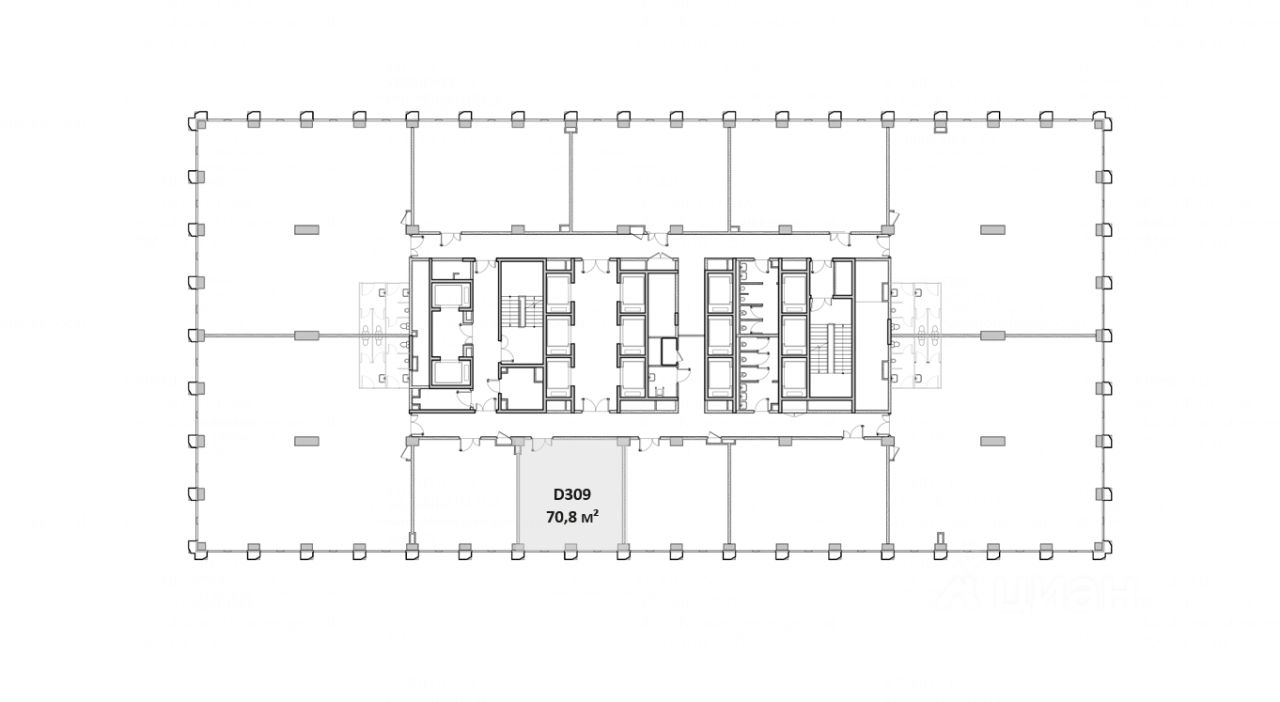
Площадь70,8 м²
Этаж3 из 19
КлассA
Отчёт о привлекательности объектаУзнайте, насколько помещение и район подходят для вашего бизнеса
Что входит в отчёт
  • Охват населения
  • Пешеходный трафик
  • Автомобильный трафик
  • Средний бюджет семьи по району
  • Арендные ставки рядом
  • Точки притяжения
  • Конкуренты в радиусе 1 км
  • Рекомендации по выбору места для бизнеса
Продажа офиса в бизнес-центре Tower D с прямым выходом в благоустроенный парк площадью 5 000 м², в составе премиального офисного квартала STONE TOWERS в Белорусском деловом районе. Бизнес-квартал рассчитан на 11 000 сотрудников, развитая инфраструктура 24/7 — кафе и рестораны, гостевой паркинг с зарядками для электромобилей, инженерное обслуживание от профессиональной управляющей компании. Характеристики офиса: - Класс БЦ: А - Этаж: 3/19 (Башня D) - Площадь: 70,8 м2 - Планировка: Open space - Отделка: без ремонта (в бетоне) - Высота потолков: 3,65 м - Шаг колонн: 8,4х 8,4 - Глубина помещения: до 10 м - Окна в пол с естественным проветриванием - Круглосуточный доступ Расположение: Офисный квартал отличают престижное расположение в Белорусском деловом районе и высокая транспортная доступность: - пешая доступность (4 мин) до ТПУ Савеловская - пешая доступность (12 мин) до ТПУ Белорусская - удобный доступ до Москва-Сити (15 мин) - удобный выезд на ТТК и Ленинградский проспект - близость аэропорта Шереметьево (45 мин)
lock

Войдите или зарегистрируйтесь
для просмотра информации

Просматривайте условия сделки и всю информацию об объекте
Сохраняйте фильтры в поиске и не вводите заново
Доступ к избранному с любого устройства
Неограниченное добавление в избранное
Позвоните автору
Вам ответят на все вопросы
Остались вопросы по объявлению?
Позвоните владельцу объявления и уточните необходимую информацию.
  • Инфраструктура
  • Похожие рядом
  • Общая площадь70,8 м²
Помощь надёжных риелторов
Риелтор партнёр Циан поможет купить или продать любую недвижимость
Агентство недвижимости
Суперагент
42 480 000 ₽
595 855 $
513 124
Цена за метр
600 000 ₽
Налог
НДС включен: 7 660 327 ₽
Агентство недвижимости
Суперагент
На Циан
6 лет
Объектов в работе
227