Мы используем куки-файлы. Соглашение об использовании
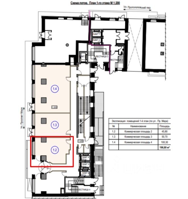
Площадь45,8 м²
Этаж1 из 10
ПомещениеСвободно
КлассA
Отчёт о привлекательности объектаУзнайте, насколько помещение и район подходят для вашего бизнеса
Что входит в отчёт
  • Охват населения
  • Пешеходный трафик
  • Автомобильный трафик
  • Средний бюджет семьи по району
  • Арендные ставки рядом
  • Точки притяжения
  • Конкуренты в радиусе 1 км
  • Рекомендации по выбору места для бизнеса
Торговая площадь в многофункциональном комплексе Gardenmir Характеристики помещения: - Первая линия Проспекта Мира - 1 этаж Торгово-административного комплекса Garden Mir - Витринные окна - Помещение находится рядом со входом в ТК - Высота потолков: 4 м - Планировка: свободная - Выполнена качественная отделка О ТК Garden Mir: Современный торгово-административный комплекс, расположенный на первой линии Проспекта Мира, в шаге от метро. Здание прошло полную реконструкцию в 2015 году: обновлён фасад, модернизированы инженерные системы, создана комфортная инфраструктура для арендаторов и посетителей. Комплекс отличается стабильным пешеходным трафиком за счёт прямой интеграции с подземным переходом и метро, а также сформированным пулом арендаторов. Транспортное расположение: - 2 минуты пешком до метро Проспект Мира - 14 минут пешком до метро Сухаревская - Интенсивный пешеходный поток - Удобный доступ с основных магистралей центра Москвы Звоните, организуем показ в удобно для Вас время!
lock

Войдите или зарегистрируйтесь
для просмотра информации

Просматривайте условия сделки и всю информацию об объекте
Сохраняйте фильтры в поиске и не вводите заново
Доступ к избранному с любого устройства
Неограниченное добавление в избранное
Позвоните автору
Вам ответят на все вопросы
Остались вопросы по объявлению?
Позвоните владельцу объявления и уточните необходимую информацию.
  • Инфраструктура
  • Похожие рядом
Помощь надёжных риелторов
Риелтор партнёр Циан поможет купить или продать любую недвижимость
103 050 000 ₽
1 369 716 $
1 161 385
Цена за метр
2 250 000 ₽
Налог
УСН
Агентство недвижимости
Суперагент