Мы используем куки-файлы. Соглашение об использовании
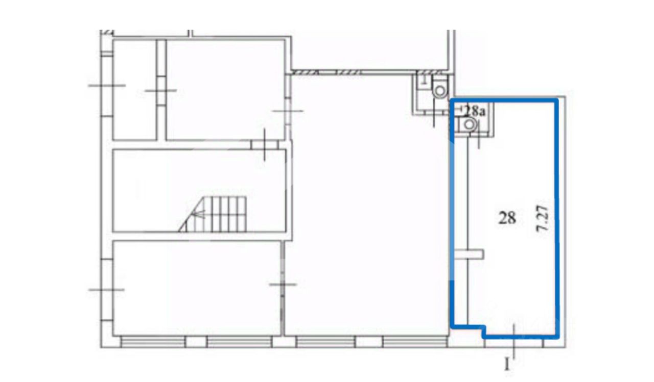
Площадь22,2 м²
Этаж1 из 2
ПомещениеСвободно
Отчёт о привлекательности объектаУзнайте, насколько помещение и район подходят для вашего бизнеса
Что входит в отчёт
  • Охват населения
  • Пешеходный трафик
  • Автомобильный трафик
  • Средний бюджет семьи по району
  • Арендные ставки рядом
  • Точки притяжения
  • Конкуренты в радиусе 1 км
  • Рекомендации по выбору места для бизнеса
979429. Предлагаем помещение свободного назначения, площадью 22,2 кв. м, расположенное на первом этаже административного здания. Без комиссии для покупателя. Преимущества объекта: -первая линия; -шаговая доступность от станции метро Окружная (5 минут пешком); -плотный жилой массив; -развитая инфраструктура района; -соседи: ПВЗ "СДЭК", супермаркет "Чижик", автосалон "Автохаус"; -высокий автомобильный и пешеходный трафик; -отлично просматривается, находится в легком доступе для потенциальных клиентов; -гибкая планировка, позволяющая адаптировать пространство под различные нужды; -возможность размещения вывески; -наземная парковка; -рядом остановка общественного транспорта; -собственная УК. Технические параметры объекта: -отдельный вход с улицы; -электрическая мощность: 7 кВт; -высота потолков: 2.85 м. Свяжитесь с нами для получения дополнительной информации!
lock

Войдите или зарегистрируйтесь
для просмотра информации

Просматривайте условия сделки и всю информацию об объекте
Сохраняйте фильтры в поиске и не вводите заново
Доступ к избранному с любого устройства
Неограниченное добавление в избранное
Позвоните автору
Вам ответят на все вопросы
Остались вопросы по объявлению?
Позвоните владельцу объявления и уточните необходимую информацию.
  • Инфраструктура
  • Похожие рядом
Помощь надёжных риелторов
Риелтор партнёр Циан поможет купить или продать любую недвижимость
9 990 000 ₽
132 785 $
112 589
Цена за метр
450 000 ₽
Налог
НДС включен: 1 801 475 ₽
Агентство недвижимости
Документы проверены