Мы используем куки-файлы. Соглашение об использовании
Площадь4 321 м²
Этажность3
КлассB
Отчёт о привлекательности объектаУзнайте, насколько помещение и район подходят для вашего бизнеса
Что входит в отчёт
  • Охват населения
  • Пешеходный трафик
  • Автомобильный трафик
  • Средний бюджет семьи по району
  • Арендные ставки рядом
  • Точки притяжения
  • Конкуренты в радиусе 1 км
  • Рекомендации по выбору места для бизнеса
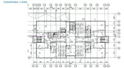
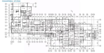
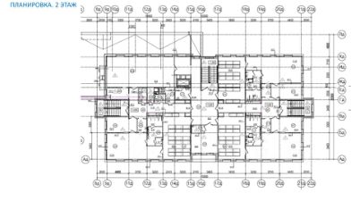
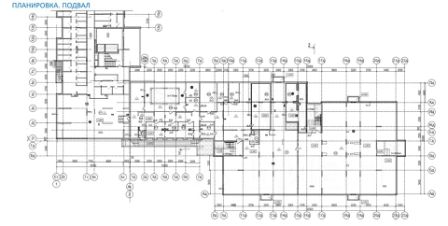
РАБОТАЕМ С АГЕНТАМИ И ПЛАТИМ! РЕНТАВИК— участник ассоциации агентств КОКОН. Встроено-пристроенное здание под размещение детского сада в проекте ЖК комфорт класса Стремлении к свету. Комплекс расположен в 5 минутах езды на транспорте от станции метро Алтуфьево. Рядом находятся парковочная зона для жителей и гостей комплекса. Налоговая: 15. Лифты: Есть. Вентиляция: Приточно-вытяжная. Кондиционирование: Сплит-системы. Безопасность: Круглосуточный доступ, Система пожаротушений, Видеонаблюдение. Парковка: Наземная. Описание помещения: Общая проектная площадь здания - 4 321 м2. Подвал - 1 224 м2. 1 этаж - 1 212,3 м2. 2 этаж - 942,35 м2. 3 этаж - 942,35 м2. Полезная площадь здания - 3 097 м2. Количество мест учащихся - 175 чел. Коммуникации все центральные. Назначение - ДДО. Планировка: смешанная. Под чистовую отделку. Подходит под: учебные цели. Высота потолка: 3.25м. Тип налогообложения: С НДС. Лот 87011-87
lock

Войдите или зарегистрируйтесь
для просмотра информации

Просматривайте условия сделки и всю информацию об объекте
Сохраняйте фильтры в поиске и не вводите заново
Доступ к избранному с любого устройства
Неограниченное добавление в избранное
Позвоните автору
Вам ответят на все вопросы
Остались вопросы по объявлению?
Позвоните владельцу объявления и уточните необходимую информацию.
  • Инфраструктура
  • Похожие рядом
Приточная вентиляция
Местное кондиционирование
Помощь надёжных риелторов
Риелтор партнёр Циан поможет купить или продать любую недвижимость
199 999 999 ₽
2 636 672 $
2 240 756
Цена за метр
46 286 ₽
Налог
НДС включен: 36 065 573 ₽
Агентство недвижимости
Риелтор
Суперагент
5,0・2