Мы используем куки-файлы. Соглашение об использовании

Продается арендный бизнес, 203,5 м²

Площадь203,5 м²
Этаж1
Отчёт о привлекательности объектаУзнайте, насколько помещение и район подходят для вашего бизнеса
Что входит в отчёт
  • Охват населения
  • Пешеходный трафик
  • Автомобильный трафик
  • Средний бюджет семьи по району
  • Арендные ставки рядом
  • Точки притяжения
  • Конкуренты в радиусе 1 км
  • Рекомендации по выбору места для бизнеса
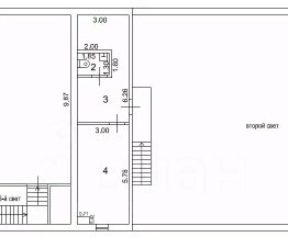
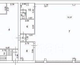
Номер объекта: 537048. СОБСТВЕННИКИ! Предлагается к продаже ГАБ с арендатором - техцентр H64, КДА, МАП 854,8 тыс.руб. с индексацией. Собственник - юр.лицо. 2-этажное здание в производственно-складском комплексе площадью 203,5 м2. Фактическая площадь (с учетом некапитальных площадей) - 447,8 м2! Земельный участок (644 м2) под зданием в собственности (не в КРТ)! Характеристики здания: - 1 эт. со вторым светом - 312,8 м2, 2 эт. - 135 м2; - год постройки 1984 г.; - отдельный вход + 2 ворот; - высота потолков 3,1-6,94 м; - эл.мощность 80 кВт; - открытая планировка; - собственный с/у; - зона погрузки/разгрузки для большегрузного транспорта; - въезд с ул. Дубнинская; - парковка на закрытой территории. В здании были заменены коммуникации, установлены новые стеклопакеты, обновлен внутренний ремонт! Объект находится в 15-ти минутах ходьбы от ст.м. Яхромская, МЦД-1 Бескудниково.
lock

Войдите или зарегистрируйтесь
для просмотра информации

Просматривайте условия сделки и всю информацию об объекте
Сохраняйте фильтры в поиске и не вводите заново
Доступ к избранному с любого устройства
Неограниченное добавление в избранное
Позвоните автору
Вам ответят на все вопросы
Остались вопросы по объявлению?
Позвоните владельцу объявления и уточните необходимую информацию.
  • Инфраструктура
  • Похожие рядом
Помощь надёжных риелторов
Риелтор партнёр Циан поможет купить или продать любую недвижимость
РиелторАртем Ченцов
Суперагент
  • 6 лет 6 месяцев на Циане
  • 71 объявление
  • 68 000 000 ₽
    896 469 $
    761 857
    Цена за метр
    334 153 ₽
    Налог
    НДС включен: 12 262 295 ₽
    РиелторАртем Ченцов
    Суперагент