Мы используем куки-файлы. Соглашение об использовании

Продается 5-комн. квартира, 335,7 м²

Общая площадь335,7 м²
Этаж1 из 8
Год постройки2009
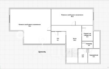
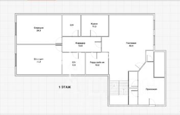
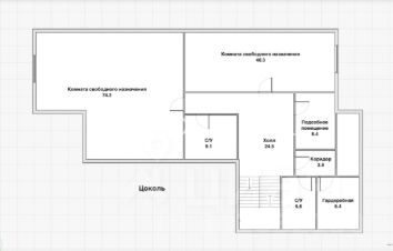
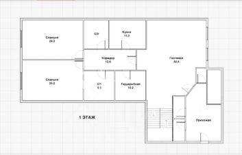
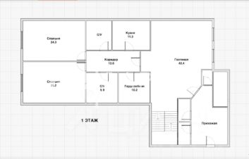
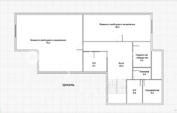
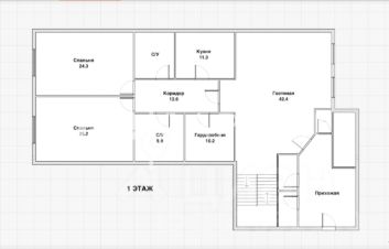
Лот f26513 К продаже предлагается двухуровневая квартира площадью 335,7 м², расположенная на 1 этаже элитного клубного дома "Парк Палас" в престижном районе Хамовники. Из окон открываются спокойные виды на благоустроенную территорию комплекса. Редкий формат сочетает дизайнерскую отделку, высокий уровень приватности и возможность дальнейшей адаптации пространства под индивидуальные задачи. • Отделка выполнена по индивидуальному проекту с использованием премиальных материалов и инженерных решений. Квартира частично готова к проживанию и имеет потенциал для создания уникальной семейной резиденции. Планировочные решения: • Площадь: 335,7 м² • Уровни: 2 • Комнаты: кухня-гостиная, столовая, 2 мастер-спальни со своими санузлами, гардеробная • Дополнительно: нулевой уровень под SPA-зону (сауна, хаммам, мини-бассейн) • Мебель: Valcucine, Rugiano • Техника: Miele Предусмотрен готовый дизайн-проект на 4 спальни (каждая с гардеробной) и 5 санузлов. Дополнительно: • В собственности 4 машиноместа • Полное юридическое сопровождение включено в стоимость Инфраструктура ЖК ЖК создан для тех, кто ценит комфорт, безопасность и приватность: • элитный спортивный клуб GOLDEN MILE • закрытые общественные зоны • круглосуточная охрана • подземный паркинг • благоустроенная территория Локация - престижный район Хамовники 5 минут — рестораны Остоженки 10 минут — Пречистенская набережная 20 минут — Кремль 30 минут — деловой центр Москвы Свяжитесь с нами Запишитесь на просмотр или узнайте больше об этом эксклюзивном предложении. Мы также можем провести для вас персональную экскурсию по локации и познакомить с домом.
Позвоните автору
Вам ответят на все вопросы

О квартире

Тип жилья

Вторичка

Общая площадь

335,7 м²

Высота потолков

3,4 м

Санузел

3 раздельных

Вид из окон

Во двор

Ремонт

Дизайнерский

О доме

Год постройки

2009

Тип дома

Кирпичный

Тип перекрытий

Железобетонные

Подъезды

7

О подъезде

Есть мусоропровод

Парковка

Подземная

Отопление

Центральное

Аварийность

Нет

Спросите умного помощника
Получите экспертное мнение о жилье

Расположение

Ипотечный калькулятор
  • Базовая
  • Семейная
  • ИТ-ипотека
  • 20%
  • 30%
  • 40%
  • 50%
лет
  • 10 лет
  • 20 лет
  • 30 лет
Загружаем предложения от застройщика и банков
399 000 000 ₽
Эксперт от ЦианаПомощь с поиском и гарантия безопасной сделки
Цена за метр
1 188 561 ₽/м²
Условия сделки
свободная продажа
Агентство недвижимости
На Циан
11 лет
Объектов в работе
236
Риелтор
Суперагент
5,0・1