Мы используем куки-файлы. Соглашение об использовании
Только на Циан
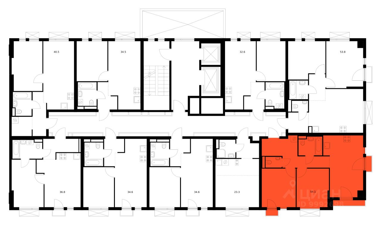
Общая площадь54,1 м²
Жилая площадь20,9 м²
Площадь кухни17,7 м²
Этаж2 из 9
Год сдачи2027
ДомНе сдан
ОтделкаЧистовая
Продаётся 2-комн. квартира площадью 54,1 кв.м на 2 этаже 9 этажного дома (Корпус 3.4, Секция 1) проекта ПИК Ильинские луга. Светлый просторный подъезд на уровне земли, функциональная планировка, большие окна, c отделкой. Жилой район "Ильинские луга" находится в 10 километрах от МКАД по Новорижскому шоссе, в 20 минутах на автомобиле от станций метро "Волоколамская", "Тушинская" и "Строгино". В будущем ближе к проекту, в 9 минутах пути на машине, откроется станция "Ильинская" Рублёво-Архангельской линии, которая будет соединять Арбатско-Покровскую линию и Большую кольцевую линию. Сейчас в квартале начались продажи в корпусах 3.2, 3.3, 3.4, 3.5 и 3.6. "Ильинские луга" — масштабный проект, в который входит девять детских садов, четыре школы и поликлиника. Он строится в престижном и экологичном районе среди лесов и памятников природы. За 5 минут от жилого квартала можно доехать до Рублёво-Успенского шоссе, а за 30 минут — до центра Москвы. До крупного торгового центра "РИГАМОЛЛ" всего 5 минут на автомобиле, а до ТЦ "Твой дом" и гипермаркета "Глобус" — 10 минут. В "Ильинских лугах" строятся только девятиэтажные дома — такая архитектура соответствует спокойной жизни за городом. В каждом дворе-парке есть места для отдыха, детские и спортивные площадки. А ещё, здесь уже открыт большой ПлейХаб "Гравити" — современное игровое пространство с космической тематикой, холмами, зонами для игр и отдыха жителей любого возраста. На первых этажах уже работают магазины, кафе и пекарни. Места для отдыха от "Ильинских лугов" тоже недалеко: 10 минут на машине — и вы в музее-усадьбе "Архангельское". Также рядом находится Лохин остров — памятник природы, где водятся речные черепахи, есть места для кемпинга и возможность сплавиться по реке. Артикул 995394 (Застройщик ООО "СЗ "ГРАДОЛИМП")

О квартире

Тип жилья

Новостройка

Общая площадь

54,1 м²

Жилая площадь

20,9 м²

Площадь кухни

17,7 м²

Высота потолков

2,62 м

Санузел

2 совмещенных

Балкон/лоджия

1 балкон

Вид из окон

На улицу

Отделка

Чистовая

О доме

Количество лифтов

1 пассажирский, 1 грузовой

Тип дома

Монолитный

Парковка

Многоуровневая

Понравилась квартира — узнайте о ней больше

Застройщик ответит на все вопросы

Отделка квартиры

Чистовая: ремонт сделан, остаётся расставить мебель и заселиться

Варианты отделки в ЖК

  • Чистовая
  • Предчистовая
  • Без отделки

О ЖК «Ильинские луга»

  • Сдача комплекса
    Сдача в 3 кв. 2027, есть сданные
  • Застройщик
    ПИК
  • Класс
    Комфорт
  • Тип дома
    Панельный, монолитный
  • Парковка
    Отдельная многоуровневая, гостевая
  • Отделка
    Без отделки, предчистовая, чистовая
  • Тип комплекса
    Жилой комплекс
Похоже на то, что вы ищете?

Особенности жилого комплекса

  • Отделка

  • Парковка

  • Внутренний двор

  • Архитектура

  • Входная группа

  • Лифт

Подробнее о жилом комплексе

Акции в ЖК «Ильинские луга»

Узнайте про персональные условия и дополнительные скидки при покупке квартиры у застройщика

Рассрочка на 9 месяцев

Рассрочка на 6 месяцев

Ипотечный калькулятор
  • Базовая
  • Семейная
  • ИТ-ипотека
  • 20%
  • 30%
  • 40%
  • 50%
лет
  • 10 лет
  • 20 лет
  • 30 лет
Загружаем предложения от застройщика и банков
Корпус проверен наш.дом.рф
Обновлено 22 апреля 2026
  • Нет в реестре проблемных объектов
  • Застройщик не банкрот
  • Есть эскроу счёт
  • Неактуальные фото стройки

Ещё квартиры в жилом комплексе

430 квартир в продаже · Сдача в 3 кв. 2027, есть сданные
ЗастройщикПИК
Год основания: 1994
Строится: 289 домов в 60 ЖК
14 617 820 ₽
Цена за метр
270 200 ₽/м²
Условия сделки
долевое участие (214-ФЗ)
Бесплатно найдём новостройкуИ поможем на сделке