Мы используем куки-файлы. Соглашение об использовании
2-комн. апартаменты, 130,7 м²
Только на Циан

Продаются 2-комн. апартаменты, 130,7 м²

Общая площадь130,7 м²
Площадь кухни2 м²
Этаж2 из 5
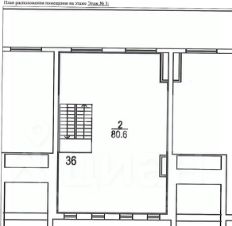
952915 . Предлагаем к приобретению апартаменты, площадью 130,7 кв. м., расположенные на втором этаже и антресоли в ЖК бизнес-класса Studio 8. Без комиссии для покупателя. Преимущества объекта: -ЖК состоит из четырёх 3-этажных корпуса; -8 минут пешком от станции метро Аэропорт; -великолепное окружение и развитая инфраструктура, в 15 минутах пешком ТЦ "Авиапарк"; -расположен между элитными жилыми комплексами Триумф Палас и Прайм Тайм; -отлично просматривается, находится в легком доступе для потенциальных клиентов; -открытая планировка; -парковка на улице. Технические параметры объекта: -отдельный вход; -электрическая мощность: 16.5 кВт; -высота потолков: 2.9 м. Есть арендатор: фитнес-клуб HIDE. Свяжитесь с нами для получения дополнительной информации!
Позвоните автору
Вам ответят на все вопросы

О квартире

Тип жилья

Вторичка / Апартаменты

Общая площадь

130,7 м²

Площадь кухни

2 м²

Высота потолков

2,9 м

Санузел

1 раздельный

Ремонт

Дизайнерский

О доме

Год постройки

2015

Тип дома

Монолитный

Тип перекрытий

Нет информации

Отопление

Нет информации

Аварийность

Нет

Спросите умного помощника
Получите экспертное мнение о жилье

Расположение

Ипотечный калькулятор
  • Базовая
  • Семейная
  • ІТ-ипотека
  • 20.1%
  • 30%
  • 40%
  • 50%
лет
  • 10 лет
  • 20 лет
  • 30 лет
Загружаем предложения от застройщика и банков
74 499 000 ₽
Эксперт от ЦианаПомощь с поиском и сделкой
Цена за метр
570 000 ₽/м²
Условия сделки
свободная продажа
Агентство недвижимости
Документы проверены
4,4・19