
Тип жилья
Новостройка
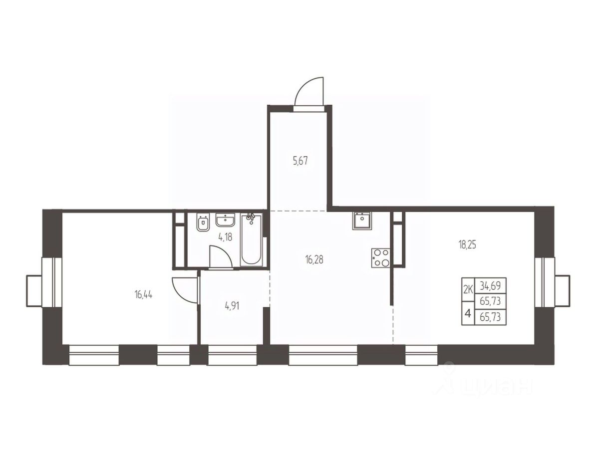
Общая площадь
65,7 м²
Жилая площадь
34,7 м²
Площадь кухни
16,3 м²
Высота потолков
2,74 м
Санузел
1 совмещенный
Вид из окон
На улицу и двор
Отделка
Предчистовая
Количество лифтов
1 пассажирский, 1 грузовой
Тип дома
Монолитный
Парковка
Наземная
Пандус
Есть
