Мы используем куки-файлы. Соглашение об использовании

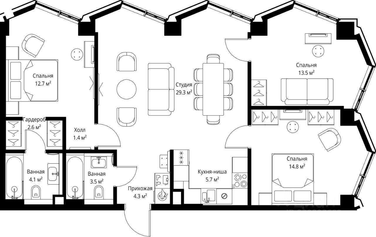
Продается 3-комн. квартира, 91,9 м²

Транспортная доступность 8,6 из 10Подробнее
Общая площадь91,9 м²
Жилая площадь40,4 м²
Этаж27 из 49
Год сдачи2024
ДомСдан
ОтделкаПредчистовая
Дом сдан. Ключи в день покупки! В продаже 3-комнатная квартира площадью 91.90 м² с предчистовой отделкой на 27 этаже 49 этажного дома в корпусе Кристалл. ЖК Симфония 34 - концептуально новый жилой комплекс премиум-класса с подземной парковкой, состоит из четырех башен высотой 36 - 54 этажа. Квартиры сдаются с базовой (предчистовой) отделкой MR BASE или дизайнерской чистовой отделкой MR READY. Высота потолков 3 - 6 метров, окна высотой до 2,6 м. Более 100 кладовых в подземной части ЖК и более 500 на этажах. Безопасность - Система контроля входа на территорию комплекса, биометрия - Система автоматического водяного пожаротушения и противопожарного водопровода, система пожарной вентиляции - Доступ на парковку при помощи системы распознавания автомобильных номеров, карточка для контроля доступа резидентов - Система видеонаблюдения - Круглосуточная связь через приложение, телефон, голосовые сообщения с охраной, консьержем, call-центр. Расположение Пешком - 6 минут до метро "Дмитровская" - 15 минут до Тимирязевского парка На машине - 5 минут до Савеловского вокзала и Аэроэкспресса в Шереметьево - 10 минут до Москва-Сити и Садового кольца Благоустройство - 70% территории отведены под зеленые насаждения и ландшафтный дизайн - Приватный Японский сад - Детские площадки с зонированием по возрасту - Clubhouse для резидентов - Wellness & SPA - Зона для пикника, зона с гамаками - Центральное лобби, ресторан, коммерческие помещения - Дополнительный вход/выход на территорию комплекса Окружение - В 10 минутах от Симфония 34 находится дизайн-завод Flacon, где регулярно проходят культурно-образовательные и развлекательные мероприятия - Тимирязевский парк расположен в 850 м. Площадь парка 232 га - Рядом расположен парк "Дубки", площадью 16,5 га. - В 15 минутах расположен Хлебозавод 9. Здесь находятся шоурумы брендов, кафе разных кухонь мира, образовательные проекты и площадки для мероприятий Компания MR предлагает своим клиентам специальные условия приобретения квартир в рамках программ ипотечного кредитования от банков-партнеров.

О квартире

Тип жилья

Новостройка

Общая площадь

91,9 м²

Жилая площадь

40,4 м²

Высота потолков

3 м

Вид из окон

На улицу и двор

Отделка

Предчистовая

О доме

Количество лифтов

1 пассажирский, 1 грузовой

Тип дома

Монолитный

Парковка

Подземная

Понравилась квартира — узнайте о ней больше

Застройщик ответит на все вопросы

Отделка квартиры

Предчистовая — остаётся установить сантехнику, розетки, двери и навести красоту: поклеить обои и уложить на пол покрытие

Отделка в ЖК

  • Чистовая
  • Предчистовая

О ЖК «Симфония 34»

  • Сдача комплекса
    Сдан
  • Застройщик
    MR
  • Класс
    Премиум
  • Тип дома
    Монолитный
  • Парковка
    Подземная, гостевая
  • Отделка
    Предчистовая, чистовая
  • Тип комплекса
    Жилой комплекс
  • Брошюра ЖК
Похоже на то, что вы ищете?

Особенности жилого комплекса

  • Отделка

  • Парковка

  • Внутренний двор

  • Парки

  • Архитектура

  • Входная группа

  • Лифт

Подробнее о жилом комплексе

Акции в ЖК «Симфония 34»

Узнайте про персональные условия и дополнительные скидки при покупке квартиры у застройщика
logo

Скидка до 7%

Выгодно
logo

Скидка 14%

logo

Скидка 9%

logo

Скидка 5%

logo

Скидка 10%

logo

MR Club–закрытый клуб лояльности MR

Материнский капитал

Трейд-ин

Ипотечный калькулятор
  • Базовая
  • Семейная
  • ИТ-ипотека
  • 20%
  • 30%
  • 40%
  • 50%
лет
  • 10 лет
  • 20 лет
  • 30 лет
Загружаем предложения от застройщика и банков
Корпус проверен наш.дом.рф
Обновлено 4 июля 2025
  • Нет в реестре проблемных объектов
  • Застройщик не банкрот

Ещё квартиры в жилом комплексе

157 квартир в продаже · Сдан
Автор объявления

Застройщик «MR»

Надежный застройщик
MR успешно работает на российском рынке с 2003 года и является одной из крупнейших компаний по объему продаж и строительству жилой и коммерческой недвижимости в России. Входит в число лидеров рынка по уровню цифровизации и инноваций в своих проектах, акти...
-7%51 739 700 ₽
48 117 921 ₽
logo
Скидка до 7%Акция от застройщика
Цена за метр
523 590 ₽/м²
Условия сделки
свободная продажа
В топ-3 рейтинга ЦианСреди застройщиков бизнес и премиум-класса
16 000 семейЖивут в построенных домах
9 500 000 м²Ввели в эксплуатацию с 2003 года