Мы используем куки-файлы. Соглашение об использовании

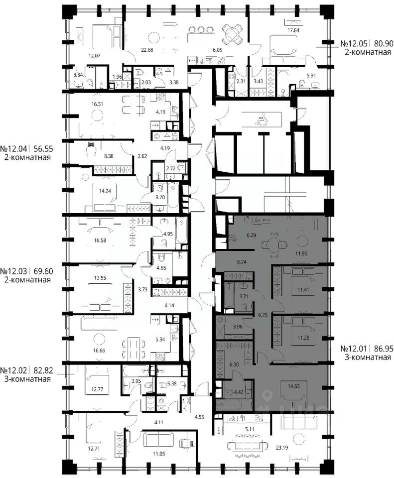
Продается 3-комн. квартира, 86,95 м²

Транспортная доступность 6,8 из 10Подробнее
Общая площадь86,95 м²
Жилая площадь37,3 м²
Этаж12 из 17
Год сдачи2027
ДомНе сдан
ОтделкаПредчистовая
Прямая продажа от застройщика. Продаётся 3-комнатная квартира общей площадью 86.95 м² с предчистовой отделкой в ЖК Сити Бэй, квартале Норс, на 12-м этаже 17 этажного дома. Концепция жилого комплекса Сити Бэй - настоящий город в городе с отлично развитой инфраструктурой и собственной благоустроенной набережной. На территории жилого комплекса расположено пять кварталов - Атлантик, Пасифик, Индиан, Норс, Клиф. Жилой квартал Сити Бэй отличается оригинальной концепцией и выделяется среди других проектов такими характеристиками как: - Архитектура, - Виды из окон, - Природное окружение, вызывая гордость у жителей и восхищение у прохожих. Вся жизнь района Покровское-Стрешнево строится вокруг водных объектов: - Пойма реки Сходни с уникальной экосистемой, - Речка Химка и Химкинское водохранилище, - Москва-река, - Канал имени Москвы. Кругом вода, и местные с удовольствием этим пользуются. А сразу за рекой - центр водного спорта в Строгино с вейк-парком и яхт-Клубами. Помимо воды, здесь очень много зелени: - Рядом Сходненский ковш памятник природы, естественный амфитеатр глубиной 40 метров; - Парк при усадьбе Братцево с фруктовым садом; - Дубовая роща "Маяк", - Алешкинский лес; - Лесопарк Покровское-Стрешнево с пляжами и бобрами. Главные транспортные артерии района: - Волоколамское шоссе, - Таганско-Краснопресненская линия метро и МЦД-2. Всего за 20 минут можно добраться до центра на машине или метро, а МЦД связывает ЖК Сити Бэй с северными, восточными и юго-восточными районами. Компания MR предлагает своим клиентам специальные условия приобретения квартир в рамках программ ипотечного кредитования от банков-партнеров.

О квартире

Тип жилья

Новостройка

Общая площадь

86,95 м²

Жилая площадь

37,3 м²

Высота потолков

3,15 м

Вид из окон

На улицу и двор

Отделка

Предчистовая

О доме

Количество лифтов

1 пассажирский, 1 грузовой

Тип дома

Монолитный

Парковка

Подземная

Пандус

Есть

Понравилась квартира — узнайте о ней больше

Застройщик ответит на все вопросы

Отделка квартиры

Предчистовая — остаётся установить сантехнику, розетки, двери и навести красоту: поклеить обои и уложить на пол покрытие

Варианты отделки в ЖК

  • Предчистовая
  • Без отделки

3D-тур

Посмотрите 3D-тур, чтобы оценить объект

О ЖК «Сити Бэй»

  • Сдача комплекса
    Сдача в 2026—2028, есть сданные
  • Застройщик
    MR
  • Класс
    Бизнес
  • Тип дома
    Монолитно-кирпичный, монолитный
  • Парковка
    Подземная
  • Отделка
    Без отделки, предчистовая
  • Тип комплекса
    Жилой комплекс
Похоже на то, что вы ищете?

Особенности жилого комплекса

  • Отделка

  • Парковка

  • Внутренний двор

  • Парки

  • Архитектура

  • Входная группа

  • Лифт

Подробнее о жилом комплексе

Акции в ЖК «Сити Бэй»

Узнайте про персональные условия и дополнительные скидки при покупке квартиры у застройщика
logo

Скидка 10%

Выгодно
logo

Скидка до 15% на квартиры недели

logo

Скидка 5%

Рассрочка 0%

logo

MR Club–закрытый клуб лояльности MR

Трейд-ин

Ипотечный калькулятор
  • Базовая
  • Семейная
  • ИТ-ипотека
  • 20%
  • 30%
  • 40%
  • 50%
лет
  • 10 лет
  • 20 лет
  • 30 лет
Загружаем предложения от застройщика и банков
Корпус проверен наш.дом.рф
Обновлено 17 марта 2026
  • Нет в реестре проблемных объектов
  • Застройщик не банкрот
  • Есть эскроу счёт
  • Неактуальные фото стройки

Ещё квартиры в жилом комплексе

435 квартир в продаже · Сдача в 2026—2028, есть сданные
Автор объявления

Застройщик «MR»

Надежный застройщик
MR успешно работает на российском рынке с 2003 года и является одной из крупнейших компаний по объему продаж и строительству жилой и коммерческой недвижимости в России. Входит в число лидеров рынка по уровню цифровизации и инноваций в своих проектах, акти...
-10%38 242 697 ₽
34 418 427 ₽
logo
Скидка 10%Акция от застройщика
Цена за метр
395 842 ₽/м²
Условия сделки
долевое участие (214-ФЗ)
В топ-3 рейтинга ЦианСреди застройщиков бизнес и премиум-класса
16 000 семейЖивут в построенных домах
9 500 000 м²Ввели в эксплуатацию с 2003 года