Мы используем куки-файлы. Соглашение об использовании

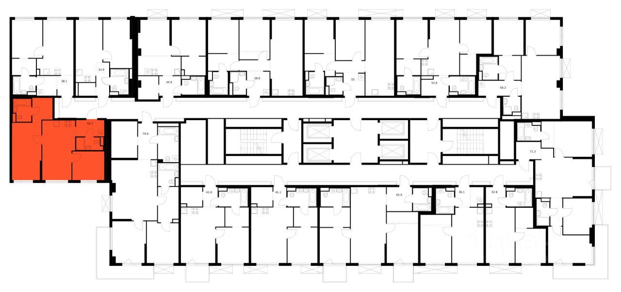
Продается 2-комн. квартира, 52,7 м²

Транспортная доступность 6,1 из 10Подробнее
Общая площадь52,7 м²
Жилая площадь22,5 м²
Площадь кухни16,1 м²
Этаж4 из 24
Год сдачи2028
ДомНе сдан
ОтделкаПредчистовая
Продаётся 2-комн. квартира площадью 52,7 кв.м на 4 этаже 24 этажного дома (Корпус 3.5, Секция 2) проекта ПИК Кавказский бульвар 51. Светлый просторный подъезд на уровне земли, функциональная планировка, большие окна, предчистовая отделка. "Кавказский бульвар 51" — современный жилой квартал в районе Царицыно. Проект частично реализован и находится в районе Царицыно, недалеко от одноимённого музея-заповедника. До метро "Кантемировская" — 17 минут пешком. За 20 можно дойти до станции "Чертаново". В 10 минутах на машине — МКАД, в 11 минутах — Варшавское шоссе, а в 16 минутах — ТТК. В проекте жилые дома высотой от 5 до 33 этажей, детский сад и школа. На первых этажах доступны магазины, кафе, салоны красоты и другие сервисы — чтобы купить кофе и свежий хлеб к завтраку, можно просто спуститься на лифте. В уютных дворах-парках есть места для отдыха и детские площадки. Для прогулок на свежем воздухе мы построим для жителей широкий пешеходный бульвар. В районе вокруг "Кавказского бульвара 51" есть всё для комфортной жизни: детские сады, школы, поликлиники, магазины и торговые центры. Девять минут на машине — и вы у музея-заповедника "Царицыно", где можно гулять среди исторических построек, лежать на траве под тенью деревьев или заниматься спортом на специальных площадках. Есть парки и поближе: до Аршиновского можно дойти за 8 минут, а до парка "Сосенки" — за 13 минут. Артикул 998483 (Застройщик АО "СПЕЦИАЛИЗИРОВАННЫЙ ЗАСТРОЙЩИК "ТОРГОВЫЙ ДОМ СПУТНИК")

О квартире

Тип жилья

Новостройка

Общая площадь

52,7 м²

Жилая площадь

22,5 м²

Площадь кухни

16,1 м²

Высота потолков

2,7 м

Санузел

2 совмещенных

Вид из окон

На улицу

Отделка

Предчистовая

О доме

Количество лифтов

4 пассажирских, 7 грузовых

Тип дома

Монолитный

Парковка

Подземная

Пандус

Есть

Понравилась квартира — узнайте о ней больше

Застройщик ответит на все вопросы

Отделка квартиры

Предчистовая — остаётся установить сантехнику, розетки, двери и навести красоту: поклеить обои и уложить на пол покрытие

Варианты отделки в ЖК

  • Чистовая
  • Предчистовая

О ЖК «Кавказский бульвар 51»

  • Сдача комплекса
    Сдача в 1—2 кв. 2028, есть сданные
  • Застройщик
    ПИК
  • Класс
    Бизнес
  • Тип дома
    Монолитный
  • Парковка
    Подземная, отдельная многоуровневая
  • Отделка
    Предчистовая, чистовая
  • Тип комплекса
    Жилой комплекс
Похоже на то, что вы ищете?

Особенности жилого комплекса

  • Отделка

  • Парковка

  • Внутренний двор

  • Парки

  • Архитектура

  • Входная группа

  • Лифт

Подробнее о жилом комплексе

Акции в ЖК «Кавказский бульвар 51»

Узнайте про персональные условия и дополнительные скидки при покупке квартиры у застройщика
logo

Квартиры с выгодой до 1,5 млн руб.

Рассрочка на 6 месяцев

Рассрочка на 12 месяцев

Рассрочка на 9 месяцев

Ипотечный калькулятор
  • Базовая
  • Семейная
  • ИТ-ипотека
  • 20%
  • 30%
  • 40%
  • 50%
лет
  • 10 лет
  • 20 лет
  • 30 лет
Загружаем предложения от застройщика и банков
Корпус проверен наш.дом.рф
Обновлено 14 апреля 2026
  • Нет в реестре проблемных объектов
  • Застройщик не банкрот
  • Есть эскроу счёт
  • Неактуальные фото стройки

Ещё квартиры в жилом комплексе

261 квартира в продаже · Сдача в 1—2 кв. 2028, есть сданные
ЗастройщикПИК
Год основания: 1994
Строится: 289 домов в 60 ЖК
17 824 194 ₽
Цена за метр
338 220 ₽/м²
Условия сделки
долевое участие (214-ФЗ)
Бесплатно найдём новостройкуИ поможем на сделке