Мы используем куки-файлы. Соглашение об использовании

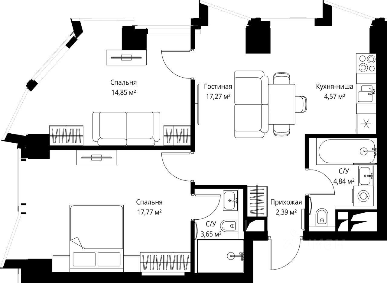
Продается 2-комн. квартира, 65,7 м²

Общая площадь65,7 м²
Этаж22 из 57
Год сдачи2025
ДомСдан
ОтделкаПредчистовая
Дом сдан! Прямая продажа от застройщика. Продаётся 2-комнатная квартира общей площадью 65.70 м² с предчистовой отделкой на 22-м этаже премиального небоскреба Феймос. Если к слову "будущее" подобрать архитектурный синоним, им непременно станет премиальный небоскреб Феймос. Он расположен в закрытом квартале "Фили Сити" - настоящем городе в городе, окруженном зеленым ореолом из аллей и скверов, с инфраструктурой для жизни и отдыха самых взыскательных горожан. Резидентов Феймос ждет особая привилегия - открывающиеся из окон бескрайние панорамы, с видами на парк Фили, Поклонную гору, Москва-реку и Москва-Сити. Эффектный ультрасовременный 57-этажный небоскреб, пластичный в нижней части, наверху трансформируется и взмывает ввысь выразительной скульптурой с обтекаемой поверхностью. Фасад украшенный стеклянными эркерами в виде прямых треугольных призм, словно олицетворяет собой идеально собранный пазл. Это безупречное решение для тех, кто не боится лидерства и высоты, не ищет простых путей, держит высокую планку во всем, не останавливается на достигнутом и живет в ритме мегаполиса. Не зря логотип Феймос украшает графический элемент Триумфальной арки на Кутузовском проспекте - символ успеха и жизненных побед. Особенности дома: - Проект премиум-класса рядом с центром Москвы - Футуристическая авторская архитектура от бюро ADM - Ультрасовременные инженерные решения современных небоскрёбов - Элегантное решение орнаментальной композиции фасада от бюро ADM - Феймос станет первым проектом в Москве с интерьерами лобби от международной архитектурной компании A ++ - Панорамное остекление по всему фасаду, головокружительные виды на достопримечательности Москвы, парк Фили, Москва-Сити и Поклонную гору - Европейский подход к благоустройству: площадь с фонтанами, парк-променад, детские и спортивные площадки, зоны отдыха - Продуманная концепция инфраструктуры: уютные кафе и рестораны, супермаркет, фитнес-студия, службы сервиса, детский центр развития - Эргономичные планировки от бюро Олега Клодта Транспортная доступность: - Удобный выезд на Кутузовский проспект и ТТК - В пешей доступности станции метро "Фили", "Багратионовская" и "Парк Победы" Компания MR предлагает своим клиентам специальные условия приобретения квартир в рамках программ ипотечного кредитования от банков-партнеров.

О квартире

Тип жилья

Новостройка

Общая площадь

65,7 м²

Высота потолков

2,9 м

Вид из окон

На улицу и двор

Отделка

Предчистовая

О доме

Количество лифтов

1 пассажирский, 2 грузовых

Тип дома

Монолитный

Парковка

Подземная

Пандус

Есть

Понравилась квартира — узнайте о ней больше

Застройщик ответит на все вопросы

Отделка квартиры

Предчистовая — остаётся установить сантехнику, розетки, двери и навести красоту: поклеить обои и уложить на пол покрытие

Отделка в ЖК

  • Предчистовая
  • Без отделки

О ЖК «Феймос»

  • Сдача комплекса
    Сдан
  • Застройщик
    MR
  • Класс
    Премиум
  • Тип дома
    Монолитно-кирпичный
  • Парковка
    Подземная, гостевая
  • Отделка
    Без отделки, предчистовая
  • Тип комплекса
    Жилой комплекс
Похоже на то, что вы ищете?

Особенности жилого комплекса

  • Отделка

  • Парковка

  • Внутренний двор

  • Парки

  • Архитектура

  • Входная группа

  • Лифт

Подробнее о жилом комплексе

Акции в ЖК «Феймос»

Узнайте про персональные условия и дополнительные скидки при покупке квартиры у застройщика
logo

Скидка 5%

Выгодно

Рассрочка 0%

logo

MR Club – закрытый клуб лояльности

logo

Скидка 8%

Материнский капитал

Ипотечный калькулятор
  • Базовая
  • Семейная
  • ИТ-ипотека
  • 20%
  • 30%
  • 40%
  • 50%
лет
  • 10 лет
  • 20 лет
  • 30 лет
Загружаем предложения от застройщика и банков
Корпус проверен наш.дом.рф
Обновлено 2 января 2026
  • Нет в реестре проблемных объектов
  • Застройщик не банкрот

Ещё квартиры в жилом комплексе

74 квартиры в продаже · Сдан
ЗастройщикMR
Год основания: 2003
Строится: 80 домов в 15 ЖК
49 058 190 ₽
Цена за метр
746 700 ₽/м²
Условия сделки
свободная продажа