Мы используем куки-файлы. Соглашение об использовании

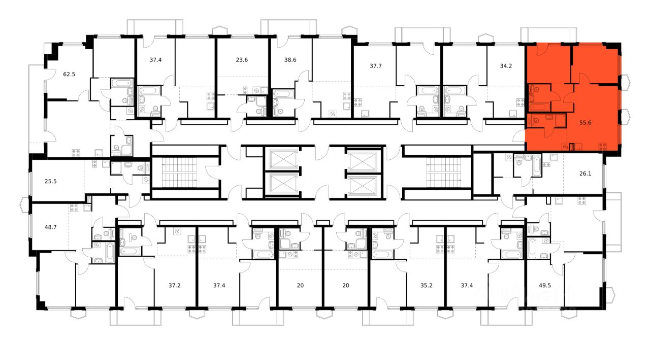
Продается 2-комн. квартира, 55,6 м²

Транспортная доступность 3,5 из 10Подробнее
Общая площадь55,6 м²
Жилая площадь20,2 м²
Площадь кухни19 м²
Этаж5 из 24
Год сдачи2026
ДомНе сдан
ОтделкаЧистовая
Продаётся 2-комн. квартира площадью 55,6 кв.м на 5 этаже 24 этажного дома (Корпус 22.4, Секция 4) проекта ПИК Бусиновский парк. Светлый просторный подъезд на уровне земли, функциональная планировка, большие окна, c отделкой. Бусиновский парк" расположен на севере Москвы — в районе Западное Дегунино, в 20 минутах пешком от метро "Ховрино". Яркий и современный образ жилого квартала создают башни-доминанты — у каждой из них свой уникальный фасад, разработанный российскими архитектурными бюро. Проектом предусмотрены входы на уровне земли, без ступеней, порогов и пандусов — так удобнее и безопаснее. У подъездов будет два выхода: на улицу и во двор-парк. В наших дворах мы установим столы и лавочки со встроенными зарядными устройствами. Не нужно будет возвращаться домой, чтобы зарядить смартфон или ноутбук: можно весь день работать на свежем воздухе В проекте появится масштабное пространство площадью 4Га - МультиХаб "Атлас". Для юных жителей появится большая игровая площадка с горными хребтами для лазания, ручьём золотоискателей, лесным фортом и песочной зоной для малышей. Дети смогут придумывать здесь бесчисленное количество игр независимо от своего возраста. Взрослые смогут отдохнуть в дождевом саду — это удивительное место, где после дождя появляются маленькие живописные озерца. Для спорта — уличные тренажёры, площадки для командных игр, столы для пинг-понга и шахмат. Владельцы собак оценят место для прогулок с питомцем. А специально для подростков мы спроектировали уникальное пространство для отдыха — памп-трек для катания, большой навес, амфитеатр и сетки для отдыха, где они смогут собираться вместе в любую погоду. В лобби "Бусиновского парка" будет удобная зона ожидания, где можно встретить друзей, курьера или дождаться такси, а также гостевая туалетная комната со столиком для пеленания. На территории проекта предусмотрены двухуровневый подземный и наземный паркинги. В паркингах установлены надёжные системы вентиляции, пожаротушения и круглосуточного видеонаблюдения. А ещё для наших паркингов мы разработали систему навигации, которая помогает быстро найти автомобиль. На подземных этажах "Бусиновского парка" предусмотрены вместительные кладовые. В них жители проекта смогут хранить сезонные и габаритные вещи, которые занимают много места в квартире. В корпусе 1.4 появится общественная терраса на 30-м этаже. Доступ сюда есть только у жителей, поэтому вы не встретите в этом пространстве посторонних людей. Здесь можно заниматься спортом, отдохнуть за чтением книги или создать собственный сад. А ещё отсюда открываются красивые виды на город. В "Бусиновском парке" предусмотрены квартиры с панорамным остеклением, различными балконами, эркерами, угловыми окнами и большим количеством окон — до пяти в одной комнате. В таких квартирах широкий угол обзора: можно пить кофе, наблюдая за жизнью на улице и наслаждаясь ощущением простора. Ещё больше комфорта придаст мягкий солнечный свет, который равномерно осветит всю квартиру. Артикул 95

О квартире

Тип жилья

Новостройка

Общая площадь

55,6 м²

Жилая площадь

20,2 м²

Площадь кухни

19 м²

Высота потолков

2,66 м

Санузел

2 совмещенных

Балкон/лоджия

1 балкон

Вид из окон

На улицу и двор

Отделка

Чистовая

О доме

Количество лифтов

4 пассажирских

Тип дома

Монолитный

Парковка

Подземная

Понравилась квартира — узнайте о ней больше

Застройщик ответит на все вопросы

Отделка квартиры

Чистовая: ремонт сделан, остаётся расставить мебель и заселиться

О ЖК «Бусиновский парк»

  • Сдача комплекса
    Сдача в 2026—2027, есть сданные
  • Застройщик
    ПИК
  • Класс
    Бизнес
  • Тип дома
    Монолитный
  • Парковка
    Подземная, отдельная многоуровневая, гостевая
  • Отделка
    Чистовая
  • Тип комплекса
    Жилой комплекс
Похоже на то, что вы ищете?

Особенности жилого комплекса

  • Отделка

  • Парковка

  • Внутренний двор

  • Парки

  • Архитектура

  • Входная группа

  • Лифт

Подробнее о жилом комплексе

Акции в ЖК «Бусиновский парк»

Узнайте про персональные условия и дополнительные скидки при покупке квартиры у застройщика
logo

Квартиры с выгодой до 1,5 млн руб.

Рассрочка на 9 месяцев

Рассрочка на 6 месяцев

Ипотечный калькулятор
  • Базовая
  • Семейная
  • ИТ-ипотека
  • 20%
  • 30%
  • 40%
  • 50%
лет
  • 10 лет
  • 20 лет
  • 30 лет
Загружаем предложения от застройщика и банков
Корпус проверен наш.дом.рф
Обновлено 15 апреля 2026
  • Нет в реестре проблемных объектов
  • Застройщик не банкрот
  • Есть эскроу счёт
  • Неактуальные фото стройки

Ещё квартиры в жилом комплексе

175 квартир в продаже · Сдача в 2026—2027, есть сданные
ЗастройщикПИК
Год основания: 1994
Строится: 289 домов в 60 ЖК
22 106 560 ₽
Цена за метр
397 600 ₽/м²
Условия сделки
долевое участие (214-ФЗ)
Бесплатно найдём новостройкуИ поможем на сделке