Мы используем куки-файлы. Соглашение об использовании
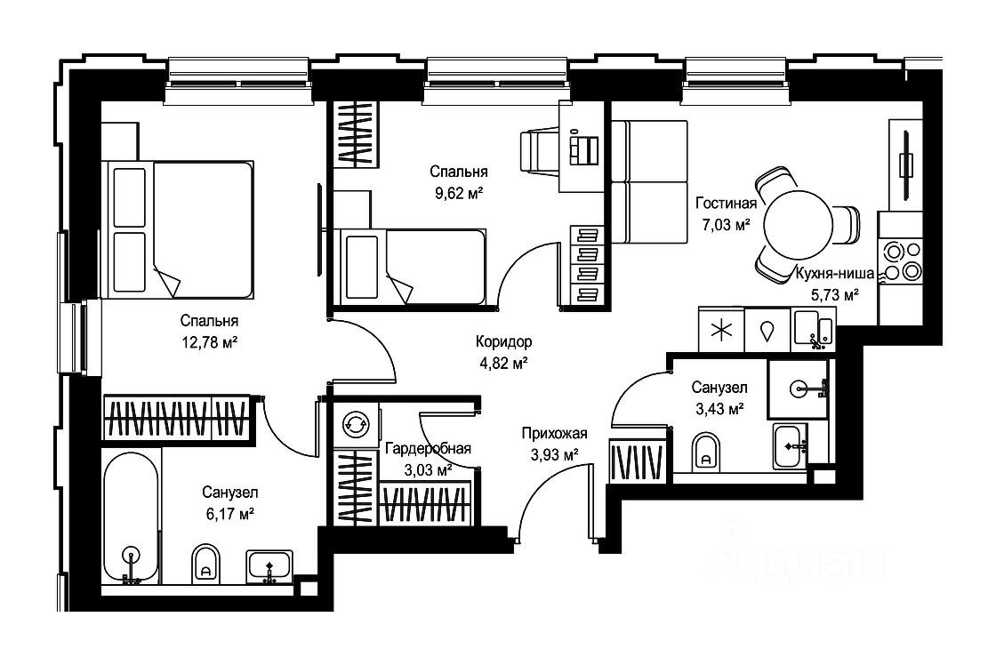
Общая площадь56,54 м²
Жилая площадь29,4 м²
Этаж8 из 39
Год сдачи2026
ДомНе сдан
ОтделкаБез отделки
Прямая продажа от застройщика. Продаётся 2-комнатная квартира общей площадью 56.54 м² без отделки в ЖК "Селигер Сити" на 8-м этаже башни Лисицкого. Корпуса четвертой очереди ЖК "Селигер сити" названы в честь трех великих представителей науки и архитектуры, новаторское видение которых — слишком смелое для своего времени — нашло воплощение в уникальных домах жилого комплекса. Вдохновленные авангардными идеями знаменитого советского архитектора Эля Лисицкого, архитекторы создали яркий центр притяжения всего района, задающий новый стандарт жизни в современном мегаполисе — две высокие "Башни Лисицкого" с современной интерпретацией горизонтального небоскреба. Преимущества проекта: - Архитектурное решение от голландского бюро MLA + - Одна из самых больших придомовых территорий в Москве - Огороженная охраняемая территория, круглосуточное видеонаблюдение - Европейский подход к благоустройству от бюро Wowhaus: появится парадный бульвар, аллея с фонтаном и арт-объектом, что дополнит уже сформированное благоустройство: детские площадки для разных возрастов, площадки для воркаута, дорожки для бега и пеших прогулок, места для отдыха - Два детских сада, школа начальных классов и центр доп.образования - Искусственный пруд на территории комплекса с благоустроенной набережной и мостом - Продуманная концепция инфраструктуры: уютные кафе и рестораны, супермаркет, магазин фермерских продуктов, бытовые службы, салон красоты, детские сады - Ультрасовременные инженерные решения - Подземный паркинг с зарядными станциями для электромобилей, постами подкачки шин и келлерами - Лобби по индивидуальному дизайн проекту от европейского бюро Вlank Architects: лаунж-зоны, ресепшен, колясочная, помещение для мытья лап животным после прогулки - Надежный девелопер с опытом премиальных проектов MR Расположение комплекса: - 2 минуты от станции метро "Селигерская" - 7 минут на машине до станции метро "Окружная" - Предусмотрен удобный выезд в сторону ТТК (всего 9 км или 15 минут без пробок) - МКАД в 10 минутах на машине Компания MR предлагает своим клиентам специальные условия приобретения квартир в рамках программ ипотечного кредитования от банков-партнеров.

О квартире

Тип жилья

Новостройка

Общая площадь

56,54 м²

Жилая площадь

29,4 м²

Высота потолков

2,85 м

Вид из окон

На улицу и двор

Отделка

Без отделки

О доме

Количество лифтов

1 пассажирский, 1 грузовой

Тип дома

Монолитный

Парковка

Подземная

Пандус

Есть

Понравилась квартира — узнайте о ней больше

Застройщик ответит на все вопросы

Отделка в ЖК

  • Предчистовая
  • Без отделки

О ЖК «Селигер Сити»

  • Сдача комплекса
    Сдача в 3 кв. 2026, есть сданные
  • Застройщик
    MR
  • Класс
    Бизнес
  • Тип дома
    Монолитно-кирпичный, монолитный
  • Парковка
    Подземная, гостевая
  • Отделка
    Без отделки, предчистовая
  • Тип комплекса
    Жилой комплекс
Похоже на то, что вы ищете?

Особенности жилого комплекса

  • Отделка

  • Парковка

  • Внутренний двор

  • Парки

  • Архитектура

  • Входная группа

  • Лифт

Подробнее о жилом комплексе

Акции в ЖК «Селигер Сити»

Узнайте про персональные условия и дополнительные скидки при покупке квартиры у застройщика
logo

Скидка 24%

logo

Скидка 27%

logo

Скидка 19%

Материнский капитал

MR Club – закрытый клуб лояльности

Трейд-ин

Ипотечный калькулятор
  • Базовая
  • Семейная
  • ИТ-ипотека
  • 20%
  • 30%
  • 40%
  • 50%
лет
  • 10 лет
  • 20 лет
  • 30 лет
Загружаем предложения от застройщика и банков
Корпус проверен наш.дом.рф
Обновлено 28 апреля 2026
  • Нет в реестре проблемных объектов
  • Застройщик не банкрот
  • Есть эскроу счёт
  • Неактуальные фото стройки

Ещё квартиры в жилом комплексе

52 квартиры в продаже · Сдача в 3 кв. 2026, есть сданные
ЗастройщикMR
Год основания: 2003
Строится: 80 домов в 15 ЖК
25 730 676 ₽
Цена за метр
455 088 ₽/м²
Условия сделки
долевое участие (214-ФЗ)