Мы используем куки-файлы. Соглашение об использовании

Продается 2-комн. квартира, 61,7 м²

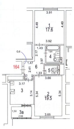
Общая площадь61,7 м²
Жилая площадь37,1 м²
Площадь кухни10 м²
Этаж9 из 12
Год постройки2025
Объявление снято с публикации, поищите ещё что-нибудь

О квартире

Тип жилья

Вторичка

Общая площадь

61,7 м²

Жилая площадь

37,1 м²

Площадь кухни

10 м²

Высота потолков

2,72 м

Санузел

2 раздельных

Балкон/лоджия

1 лоджия

Ремонт

Евроремонт

О доме

Количество лифтов

1 пассажирский, 1 грузовой

Тип дома

Монолитный

Парковка

Подземная

21 890 000 ₽
Эксперт от ЦианаПомощь с поиском и гарантия безопасной сделки
Цена за метр
354 781 ₽/м²
Условия сделки
свободная продажа
Ипотека
возможна
СобственникID 138736402
  • Предоставил паспорт