Мы используем куки-файлы. Соглашение об использовании
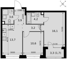
Общая площадь57 м²
Жилая площадь26,7 м²
Площадь кухни13,7 м²
Этаж2 из 27
Год сдачи2030
ДомНе сдан
ОтделкаБез отделки
Прямая продажа от застройщика! Жилой Комплекс класса бизнес+. Продаётся 2-к квартира номер 7 общей площадью 57 кв.м. на 2-м этаже 27 этажного здания. Без отделки. Цена с учётом скидки. Особенности квартиры: - Организуем показ в удобное для вас время! - Мастер-зона с санузлом и гардеробной. Всё для вашего комфорта и удобства, включая личный санузел и гардероб. - Линейная планировка - максимальная функциональность и удобство. - Увеличенная ширина окна/окон - больше света и визуального простора. - Гостевой санузел - комфорт и удобство для ваших гостей. - Душ помимо ванной - дополнительное удобство для вашей семьи. - Гибкая планировка - создайте пространство по своему вкусу. - Можно оборудовать рабочее место - комфорт для работы и учёбы. - Просторная кухня - место для семейных ужинов и кулинарных экспериментов. - Гардеробная - удобство для хранения и организации вещей. - Лоджия - уютное место для отдыха и тишины. Квартира без отделки. Чистый холст для воплощения интерьера вашей мечты. Информация о комплексе: Проект класса бизнес+ в историческом районе Москвы с насыщенной городской инфраструктурой. Приватное расположение внутри квартала, закрытый ландшафтный двор с водопадом, инженерия по золотому стандарту ФСК, сбалансированное благоустройство и подземный паркинг делают жилой комплекс "Симоновский Вал" идеальным местом для семьи. Террасы "Симоновского Вала" - уникальный архитектурный элемент, который не только формирует выразительный облик комплекса, но и становится естественным продолжением вашего жилого пространства. Приватная смотровая площадка с панорамными видами на центр Москвы и изгибы Москвы-реки открывает безграничные возможности для премиального образа жизни. Лобби проекта наполнено светом и спокойствием - здесь хочется ненадолго задержаться, перевести дыхание. Мягкое освещение создают авторские светильники: они подчеркивают архитектуру пространства и не утомляют глаз. Акцентный элемент - мозаичное панно с растительным мотивом, выполненное из керамических пластин, которое придает интерьеру изысканность и художественную выразительность. Транспортная доступность: Метро "Дубровка" - 7 мин. пешком Метро "Волгоградский проспект" - 17 мин. пешком Станция МЦК "Дубровка" - 9 мин. пешком Внутренняя инфраструктура: Район, избалованный хорошей инфраструктурой, предъявляет высокие требования к сервисам и магазинам под вашими окнами. И "Симоновскому Валу" есть что ответить. В его общественном дворе расположеныв магазины со свежайшими продуктами и бытовыми товарами, кофейни с безупречным капучино и здоровыми десертами, барбершоп, салон красоты и другие сервисы. Квартира без отделки - чистый холст для вашего интерьера.

О квартире

Тип жилья

Новостройка

Общая площадь

57 м²

Жилая площадь

26,7 м²

Площадь кухни

13,7 м²

Высота потолков

3 м

Отделка

Без отделки

О доме

Количество лифтов

2 пассажирских, 2 грузовых

Пандус

Есть

Понравилась квартира — узнайте о ней больше

Застройщик ответит на все вопросы

Отделка в ЖК

  • Чистовая
  • Предчистовая
  • Черновая
  • Без отделки

3D-тур

Посмотрите 3D-тур, чтобы оценить объект

О ЖК «Симоновский Вал»

  • Сдача комплекса
    Сдача в 2 кв. 2030
  • Застройщик
    ГК ФСК
  • Класс
    Бизнес
  • Тип дома
    Монолитно-кирпичный
  • Парковка
    Подземная, гостевая
  • Отделка
    Без отделки, предчистовая, черновая, чистовая
  • Тип комплекса
    Жилой комплекс
Похоже на то, что вы ищете?

Особенности жилого комплекса

  • Отделка

  • Парковка

  • Внутренний двор

  • Парки

  • Архитектура

  • Входная группа

  • Лифт

Подробнее о жилом комплексе

Акции в ЖК «Симоновский Вал»

Узнайте про персональные условия и дополнительные скидки при покупке квартиры у застройщика
Ипотечный калькулятор
  • Базовая
  • Семейная
  • ИТ-ипотека
  • 20%
  • 30%
  • 40%
  • 50%
лет
  • 10 лет
  • 20 лет
  • 30 лет
Загружаем предложения от застройщика и банков
Корпус проверен наш.дом.рф
Обновлено 12 мая 2026
  • Нет в реестре проблемных объектов
  • Застройщик не банкрот
  • Есть эскроу счёт
  • Актуальные фото стройки

Ещё квартиры в жилом комплексе

42 квартиры в продаже · Сдача в 2 кв. 2030
ЗастройщикГК ФСК
Год основания: 2005
Строится: 90 домов в 21 ЖК
28 055 400 ₽
Цена за метр
492 200 ₽/м²
Условия сделки
долевое участие (214-ФЗ)