Мы используем куки-файлы. Соглашение об использовании
С мебелью

Продается 3-комн. квартира, 51 м²

Общая площадь51 м²
Жилая площадь35 м²
Площадь кухни6,2 м²
Этаж3 из 9
Год постройки1974
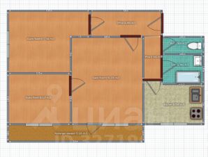
Риэлтор есть, услуги по продаже не интересуют. Продается уютная 3-комнатная квартира в тихом районе Москвы, всего в 5—7 минутах пешком от метро Давыдково. Общая площадь квартиры составляет 51 кв. м, жилая площадь — 35 кв. м, а кухня занимает 6.2 кв. м. Квартира расположена на 3 этаже 9-этажного панельного дома, построенного в 1975 году. Высота потолков — 2.64 метра, квартира угловая, окна выходят во двор, что обеспечивает тишину и комфорт. В квартире сделан качественный ремонт, поэтому она полностью готова к заселению. Просторные и светлые комнаты позволят вам уютно обустроить свой новый дом. Санузел отдельный, что удобно для семейного проживания. Дом в хорошем состоянии, оборудован пассажирским лифтом и имеет мусоропровод, поэтому можно не беспокоиться о выносе мусора и поднятии тяжестей на этаж. Наземная парковка за шлагбаумом около дома позволяет удобно разместить несколько автомобилей. Инфраструктура района развита: рядом с домом находятся школы, детские сады, клиники и магазины, что делает его идеальным для семей с детьми. Отличная транспортная доступность позволяет быстро добраться до центра города. Квартира продается от собственника, что упрощает сделку и исключает дополнительные риэлторские комиссии. Готовы к оперативному заключению договора купли-продажи. Документы готовы, обременений нет. Рассматривается обмен на коттедж строго по киевскому направлению до 25 км от мкад с участком от 12 соток в районе Первомайского, Крекшино. Цена квартиры на обмен зависит от адекватности встречного предложения и выше, чем при продаже. Приглашаем вас на просмотр! Звоните и договаривайтесь на удобное для вас время, чтобы лично оценить все преимущества этой квартиры.
Позвоните автору
Вам ответят на все вопросы

О квартире

Тип жилья

Вторичка

Общая площадь

51 м²

Жилая площадь

35 м²

Площадь кухни

6,2 м²

Высота потолков

2,64 м

Санузел

1 раздельный

Ремонт

Евроремонт

Перепланировка

Не было

Продаётся с мебелью

Да

О доме

Год постройки

1974

Строительная серия

1-515

Количество лифтов

1 пассажирский

Тип дома

Панельный

Тип перекрытий

Нет информации

Подъезды

4

О подъезде

Есть мусоропровод

Придомовая территория

Шлагбаум

Парковка

Наземная

Отопление

Центральное

Аварийность

Нет

Газоснабжение

Центральное

Юридические особенности

Несовершеннолетние собственники

Нет

Материнский капитал при покупке

Не использовался

Доступная среда

Вход в подъезд без порога
Вход в квартиру без порога
Есть лифт от 90 см
Входная дверь от 80 см
Двери в ванной и санузле 65-70 см
Спросите умного помощника
Получите экспертное мнение о жилье

Расположение

Ипотечный калькулятор
  • Базовая
  • Семейная
  • ИТ-ипотека
  • 20%
  • 30%
  • 40%
  • 50%
лет
  • 10 лет
  • 20 лет
  • 30 лет
Загружаем предложения от застройщика и банков
Зимой будет тепло
Дома такой же серии обычно хорошо сохраняют тепло
7
СобственникID 102829343
  • Предоставил паспорт
19 500 000 ₽
Эксперт от ЦианаПомощь с поиском и гарантия безопасной сделки
Цена за метр
382 353 ₽/м²
Условия сделки
свободная продажа
Ипотека
возможна
СобственникID 102829343
  • Предоставил паспорт