Мы используем куки-файлы. Соглашение об использовании

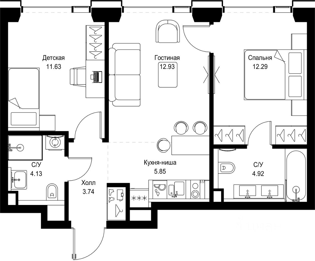
Продается 2-комн. квартира, 55,49 м²

Транспортная доступность 5,7 из 10Подробнее

Квартиры бизнес-класса на реке

Общая площадь55,49 м²
Жилая площадь36,9 м²
Этаж22 из 52
Год сдачи2028
ДомНе сдан
ОтделкаБез отделки
Прямая продажа от застройщика. В ЖК Сет продается 2-комнатная квартира площадью 55.49 м², расположенная в корпусе А, на 22 этаже 52 этажного дома. Сет имеет стратегически выгодное расположение в ЗАО, в районе с большой историей и блестящим будущим: между природной зоной долины реки Сетунь и Кутузовским проспектом. В рамках возведения первой очереди предусмотрено три корпуса высотой 18, 45 и 59 этажей. На верхних этажах спроектированы общедоступные смотровые площадки с панорамным обзором на центр столицы. Преимущества проекта: • Функциональные планировочные решения • Контроль проникновения через входную дверь • Система управления освещением и температурой в квартире • Система защиты от протечек с функцией перекрытия воды • Вход в подъезд по биометрическим считывателям Face ID • Скоростные лифты • Двухуровневый подземный охраняемый паркинг на 495 машино-мест Застройка Сет включает в себя не только жилые корпуса, но и инфраструктурные объекты. Все необходимое для повседневного комфорта будет расположено в шаговой доступности: • Фитнес-Клуб с бассейном • Ведущая городская школа, детский сад и школа искусств • Центр культуры и досуга • Медицинский центр • Кафе и рестораны Расположение комплекса: Пешком: • Метро "Давыдково" - 17 минут • Парк "Долина реки Сетунь" - 3 минуты • Открытие новых станций метро в шаговой доступности в будущем Инфраструктура: Разнообразить свой день резиденты Веер смогут также проводя больше времени на свежем воздухе. Двор разделен на 4 зоны разных эмоций и действий, которые пересечены и соединены веерными прогулочными маршрутами: • Спортивная площадка устроена в глубине "Кленовой рощи" • В "Чайном домике" будет создан навес с утеплением для отдыха в любую погоду • Площадки для детей воплотятся в "Волшебный лес" с цветами, зеркалами и световым дизайном • "Центральная площадь" устроена у водного оазиса живописного пруда. На машине: • "Москва-Сити" - 15 минут • Садовое кольцо - 20 минут • ТЦ "Океания" - 8 минут • ТЦ "Времена года" - 13 минут • Сколково - 12 минут • Гребной канал - 17 минут Компания MR предлагает своим клиентам специальные условия приобретения квартир в рамках программ ипотечного кредитования от банков-партнеров.

О квартире

Тип жилья

Новостройка

Общая площадь

55,49 м²

Жилая площадь

36,9 м²

Высота потолков

2,85 м

Вид из окон

На улицу и двор

Отделка

Без отделки

О доме

Количество лифтов

1 пассажирский, 1 грузовой

Тип дома

Монолитный

Парковка

Подземная

Понравилась квартира — узнайте о ней больше

Застройщик ответит на все вопросы

Отделка в ЖК

  • Без отделки

3D-тур

Посмотрите 3D-тур, чтобы оценить объект

О ЖК «СЕТ»

  • Сдача комплекса
    Сдача в 3 кв. 2028
  • Застройщик
    MR
  • Класс
    Бизнес
  • Тип дома
    Монолитно-кирпичный
  • Парковка
    Подземная, гостевая
  • Отделка
    Без отделки
  • Тип комплекса
    Жилой комплекс
  • Брошюра ЖК
Похоже на то, что вы ищете?

Особенности жилого комплекса

  • Парковка

  • Внутренний двор

  • Архитектура

  • Входная группа

  • Лифт

Подробнее о жилом комплексе

Акции в ЖК «СЕТ»

Узнайте про персональные условия и дополнительные скидки при покупке квартиры у застройщика
logo

Скидка 20%

Выгодно
logo

Скидка 10%

Рассрочка 0%

Рассрочка 0%

logo

Скидка 15%

logo

MR Club–закрытый клуб лояльности MR

Трейд-ин

Ипотечный калькулятор
  • Базовая
  • Семейная
  • ИТ-ипотека
  • 20%
  • 30%
  • 40%
  • 50%
лет
  • 10 лет
  • 20 лет
  • 30 лет
Загружаем предложения от застройщика и банков

Ещё квартиры в жилом комплексе

491 квартира в продаже · Сдача в 3 кв. 2028
Автор объявления

Застройщик «MR»

Надежный застройщик
MR успешно работает на российском рынке с 2003 года и является одной из крупнейших компаний по объему продаж и строительству жилой и коммерческой недвижимости в России. Входит в число лидеров рынка по уровню цифровизации и инноваций в своих проектах, акти...
-20%34 313 629 ₽
27 450 903 ₽
logo
Скидка 20%Акция от застройщика
Цена за метр
494 700 ₽/м²
Условия сделки
долевое участие (214-ФЗ)
В топ-3 рейтинга ЦианСреди застройщиков бизнес и премиум-класса
16 000 семейЖивут в построенных домах
9 500 000 м²Ввели в эксплуатацию с 2003 года