Мы используем куки-файлы. Соглашение об использовании

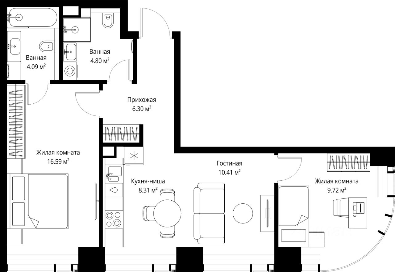
Продается 2-комн. квартира, 60,22 м²

Транспортная доступность 4,3 из 10Подробнее

Старт продаж!

Общая площадь60,22 м²
Жилая площадь26,3 м²
Этаж21 из 70
Год сдачи2029
ДомНе сдан
ОтделкаБез отделки
Старт продаж новой очереди! Продаётся 2-комнатная квартира общей площадью 60.22 м² без отделки в ЖК Веер на 21-м этаже 70 этажного дома. ВЕЕР.2 — это вторая очередь жилого комплекса бизнес-класса в престижном ЗАО, где реализована концепция 15-минутного города. Всё, что нужно для комфортной жизни, работы и отдыха, находится в шаговой доступности: офисный и спортивный кластеры, государственная рейтинговая школа 1329 и детский сад, центры творчества, ресторанный бульвар, фитнес и спа-центр с 25-метровым бассейном. • Архитектура и лобби ВЕЕР.2 — это ансамбль из четырёх стеклянных башен от бюро Kleinewelt Architekten, объединённых стилобатом с благоустроенным закрытым двором без машин. Моллированные окна обеспечивают максимум естественного света и ощущение простора. В каждой башне — роскошное лобби от испанского бюро Jaime Beriestain Studio: высокие потолки, обилие живых деревьев, природные материалы и палитра природных оттенков создают атмосферу Люксембургского сада прямо у вас дома. Двухуровневое гранд-лобби с коворкингом и библиотекой станет центром встреч с друзьями и соседями. В каждом лобби предусмотрены лапомойки и просторные колясочные. • Двор и инфраструктура Двор ВЕЕР.2 — это настоящий оазис северной природы: тактильная тропа, сад камней, асимметричные холмы, хвойные островки и павильон для отдыха. Для работы на свежем воздухе — бизнес-гарден, для занятий спортом — пространство для йоги и сайкла. Здесь всё продумано для поддержания гармонии в суете жизни. • Спорт и досуг Трёхуровневый фитнес и СПА-центр на 4000 кв.м с 25-метровым бассейном под прозрачной крышей, кардио- и силовыми залами, а также пространством для групповых занятий — всё это рядом с домом. • Планировки и технологии В комплексе представлены продуманные планировки: панорамные кухни-гостиные, гардеробные даже в небольших лотах, разделение на гостевую и приватную зоны, кладовые при кухнях. Малоэтажные уютные секции с 25 квартирами на этаже и с эксплуатируемой кровлей подойдут тем, кто ищет уединения. ВЕЕР.2 оснащён умной инженерией: скоростные лифты премиум-класса Sword, система считывания номеров в паркинге, гостевой Wi-Fi, приточно-вытяжная вентиляция, внутрипольные конвекторы. Безопасность обеспечивает отдельный вход для курьеров и современные системы охраны. • Парковка и сервис Для жителей предусмотрен удобный двухуровневый паркинг на 736 машиномест с прямым доступом из лобби, зарядками для электромобилей, зонами разгрузки, кладовыми и велопарковками.

О квартире

Тип жилья

Новостройка

Общая площадь

60,22 м²

Жилая площадь

26,3 м²

Высота потолков

2,85 м

Вид из окон

На улицу и двор

Отделка

Без отделки

О доме

Количество лифтов

1 пассажирский, 1 грузовой

Тип дома

Монолитный

Парковка

Подземная

Понравилась квартира — узнайте о ней больше

Застройщик ответит на все вопросы

Отделка в ЖК

  • Без отделки
  • Предчистовая

3D-тур

Посмотрите 3D-тур, чтобы оценить объект

О ЖК «Веер»

  • Сдача комплекса
    Сдача в 2028—2029
  • Застройщик
    MR
  • Класс
    Бизнес
  • Тип дома
    Монолитно-кирпичный, кирпичный
  • Парковка
    Подземная, гостевая
  • Отделка
    Без отделки, предчистовая
  • Тип комплекса
    Жилой комплекс
  • Брошюра ЖК
Похоже на то, что вы ищете?

Особенности жилого комплекса

  • Парковка

  • Внутренний двор

  • Архитектура

  • Входная группа

  • Лифт

Подробнее о жилом комплексе

Акции в ЖК «Веер»

Узнайте про персональные условия и дополнительные скидки при покупке квартиры у застройщика
logo

Скидка 20%

Выгодно
logo

Скидка 15%

logo

Скидка 10%

Рассрочка 0%

Рассрочка 0%

logo

MR Club–закрытый клуб лояльности MR

Трейд-ин

Ипотечный калькулятор
  • Базовая
  • Семейная
  • ИТ-ипотека
  • 20%
  • 30%
  • 40%
  • 50%
лет
  • 10 лет
  • 20 лет
  • 30 лет
Загружаем предложения от застройщика и банков
Корпус проверен наш.дом.рф
Обновлено 12 мая 2026
  • Нет в реестре проблемных объектов
  • Застройщик не банкрот
  • Есть эскроу счёт
  • Актуальные фото стройки

Ещё квартиры в жилом комплексе

490 квартир в продаже · Сдача в 2028—2029
Автор объявления

Застройщик «MR»

Надежный застройщик
MR успешно работает на российском рынке с 2003 года и является одной из крупнейших компаний по объему продаж и строительству жилой и коммерческой недвижимости в России. Входит в число лидеров рынка по уровню цифровизации и инноваций в своих проектах, акти...
-20%34 566 280 ₽
27 653 024 ₽
logo
Скидка 20%Акция от застройщика
Цена за метр
459 200 ₽/м²
Условия сделки
долевое участие (214-ФЗ)
В топ-3 рейтинга ЦианСреди застройщиков бизнес и премиум-класса
16 000 семейЖивут в построенных домах
9 500 000 м²Ввели в эксплуатацию с 2003 года