Мы используем куки-файлы. Соглашение об использовании

Продается 1-комн. квартира, 38,3 м²

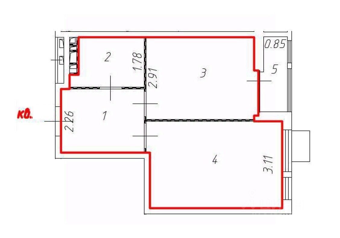
Общая площадь38,3 м²
Жилая площадь14,8 м²
Площадь кухни12,7 м²
Этаж12 из 23
Лот: 338. БЕЗ КОМИССИИ. Продается 1-комнатная квартира в ЖК Южные Сады. О СДЕЛКЕ - Собственность. Договор купли-продажи. - Один взрослый собственник. - Никто не прописан. Возможен торг. ПЛАНИРОВКА КВАРТИРЫ: Квартира имеет удобную функциональную планировку. Общая площадь — 38,3(4) кв. м Комната — 14,8 кв.м Кухня — 11,3 кв.м Санузел совмещенный: 4,3 кв. м Лоджия 2,4 кв.м (1,2 кв.м с учетом понижающего коэффициента 0,5) ОПИСАНИЕ КВАРТИРЫ: Сотояние под отделку. Возведены межкомнатные стены, подготовлены к проведению электрической проводки. Декоративная корзина под внешний блок кондиционера расположена на фасаде. ИНФРАСТРУКТУРА Закрытый двор без машин с детскими площадками; Подземный паркинг; 3 станции метро Бунинская аллеяв пешей доступности. Путь можно проложить по зелёной дороге через ландшафтный парк Южное Бутово. Двор-патио, парк и амфитеатр; Действующие школы и детские сады в окружении; Удобный выезд на трассу СБВ; Квартира готова к продаже. Все документы в порядке, поэтому сделка пройдет быстро и без проблем. Возможна покупка в ипотеку. Приглашаем вас на просмотр, чтобы лично оценить все преимущества этой замечательной квартиры. Записывайтесь на удобное время и приходите!
Позвоните автору
Вам ответят на все вопросы

О квартире

Тип жилья

Вторичка

Общая площадь

38,3 м²

Жилая площадь

14,8 м²

Площадь кухни

12,7 м²

Ремонт

Без ремонта

О доме

Год постройки

2023

Строительная серия

Индивидуальный проект

Тип перекрытий

Нет информации

Отопление

Нет информации

Аварийность

Нет

Спросите умного помощника
Получите экспертное мнение о жилье

Расположение

Ипотечный калькулятор
  • Базовая
  • Семейная
  • ИТ-ипотека
  • 20%
  • 30%
  • 40%
  • 50%
лет
  • 10 лет
  • 20 лет
  • 30 лет
Загружаем предложения от застройщика и банков
14 000 000 ₽
Эксперт от ЦианаПомощь с поиском и сделкой
Цена за метр
365 535 ₽/м²
Условия сделки
свободная продажа
Агентство недвижимости
Суперагент
На Циан
21 год
Объектов в работе
164