Мы используем куки-файлы. Соглашение об использовании

Продается 2-комн. квартира, 58,13 м²

Транспортная доступность 5,8 из 10Подробнее
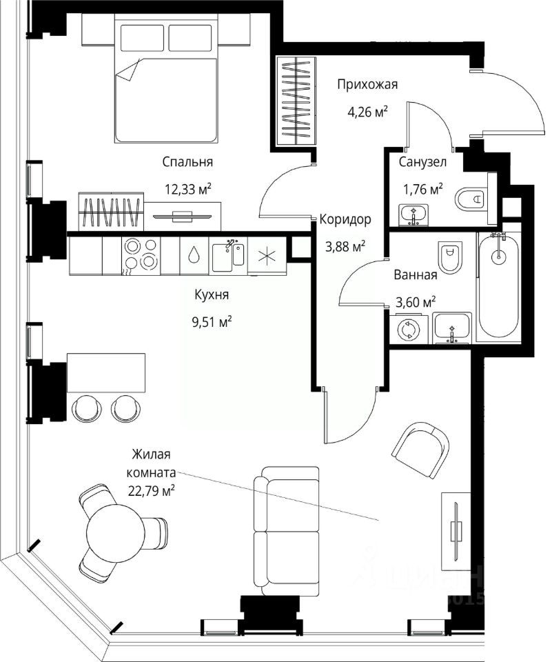
Общая площадь58,13 м²
Жилая площадь35,1 м²
Площадь кухни9,5 м²
Этаж20 из 26
Год сдачи2029
ДомНе сдан
ОтделкаБез отделки
Продается 2-комнатная квартира от застройщика в жилом мультиквартале СИТИДЗЕН на 20-м этаже. Общая площадь лота составляет 58.13 м² СИТИДЗЕН — это большой город в миниатюре. Инфраструктура мультиквартала организована по принципу шаговой доступности от подъезда до любой нужной точки: супермаркета, кофейни, салона красоты, фитнес-центра и др. В домах представлены лобби с атмосферой премиального резорта, дизайн которых вдохновлен французскими интерьерами 1960-х годов. Концепция благоустройства территории мультиквартала предусматривает большое количество вечнозеленых растений, что создает ощущение максимальной близости к природе. Жителей квартала ждут места для отдыха, игр, занятий спортом и прогулок с домашними питомцами. В приватном дворе с собственным садом предусмотрена зеленая комьюнити-гостиная для дружеского отдыха и общения, одна из стен которой подходит для кинопроекций, а также зеленый рабочий кабинет в саду (бизнес-гардена), оборудованный wi-fi станцией и usb-разъёмами для зарядки устройств. Маленьких жителей ждут авторские игровые площадки для разных возрастных групп (от 0 до 12 лет). Компания MR предлагает своим клиентам специальные условия приобретения квартир в рамках программ ипотечного кредитования от банков-партнеров.

О квартире

Тип жилья

Новостройка

Общая площадь

58,13 м²

Жилая площадь

35,1 м²

Площадь кухни

9,5 м²

Высота потолков

2,85 м

Вид из окон

На улицу и двор

Отделка

Без отделки

О доме

Количество лифтов

1 пассажирский, 1 грузовой

Тип дома

Монолитный

Парковка

Подземная

Понравилась квартира — узнайте о ней больше

Застройщик ответит на все вопросы

Варианты отделки в ЖК

  • Предчистовая
  • Без отделки

О ЖК «СИТИДЗЕН»

  • Сдача комплекса
    Сдача в 2027—2029
  • Застройщик
    MR
  • Класс
    Бизнес
  • Тип дома
    Монолитно-кирпичный
  • Парковка
    Подземная
  • Отделка
    Без отделки, предчистовая
  • Тип комплекса
    Жилой комплекс
Похоже на то, что вы ищете?

Особенности жилого комплекса

  • Отделка

  • Парковка

  • Внутренний двор

  • Парки

  • Архитектура

  • Входная группа

  • Лифт

Подробнее о жилом комплексе

Акции в ЖК «СИТИДЗЕН»

Узнайте про персональные условия и дополнительные скидки при покупке квартиры у застройщика
logo

Скидка 8%

Выгодно
logo

Скидка 5%

Рассрочка 0%

logo

MR Club–закрытый клуб лояльности MR

Материнский капитал

Трейд-ин

Ипотечный калькулятор
  • Базовая
  • Семейная
  • ИТ-ипотека
  • 20%
  • 30%
  • 40%
  • 50%
лет
  • 10 лет
  • 20 лет
  • 30 лет
Загружаем предложения от застройщика и банков
Корпус проверен наш.дом.рф
Обновлено 20 апреля 2026
  • Нет в реестре проблемных объектов
  • Застройщик не банкрот
  • Есть эскроу счёт
  • Актуальные фото стройки

Ещё квартиры в жилом комплексе

338 квартир в продаже · Сдача в 2027—2029
ЗастройщикMR
Год основания: 2003
Строится: 80 домов в 15 ЖК
-8%30 041 584 ₽
27 638 257 ₽
logo
Скидка 8%Акция от застройщика
Цена за метр
475 456 ₽/м²
Условия сделки
долевое участие (214-ФЗ)