Агентство недвижимости
Документы проверены
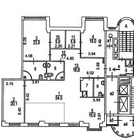
Тип жилья
Вторичка
Общая площадь
192 м²
Площадь кухни
20 м²
Высота потолков
3,3 м
Санузел
2 совмещенных, 1 раздельный
Балкон/лоджия
1 лоджия
Вид из окон
На улицу и двор
Ремонт
Дизайнерский
Продаётся с мебелью
Да
Год постройки
2010
Строительная серия
Индивидуальный проект
Количество лифтов
3 пассажирских, 2 грузовых
Тип дома
Монолитный
Тип перекрытий
Железобетонные
Подъезды
3
О подъезде
Есть мусоропровод
Парковка
Подземная
Отопление
Центральное
Аварийность
Нет
