Мы используем куки-файлы. Соглашение об использовании
С мебельюПроверено в Росреестре

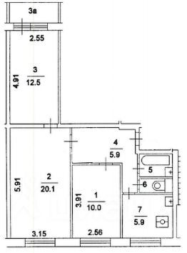
Продается 3-комн. квартира, 57,9 м²

Общая площадь57,9 м²
Жилая площадь43 м²
Площадь кухни6 м²
Этаж9 из 12
Год постройки1972
3-х комнатная квартира в 5 минутах от метро ул. Академика Янгеля. Две изолированные комнаты, зал проходной. В 2018 году выполнен капитальный ремонт с заменой всей сантехники и электрики. В спальне кондиционер. Развитая инфраструктура, в пешей доступности ТРЦ Коламбус, Битцевский лес. Один взрослый собственник, в квартире никто не прописан. С риэлторами не сотрудничаю, в помощи не нуждаюсь!
Позвоните автору
Вам ответят на все вопросы

О квартире

Тип жилья

Вторичка

Общая площадь

57,9 м²

Жилая площадь

43 м²

Площадь кухни

6 м²

Высота потолков

2,64 м

Санузел

1 раздельный

Балкон/лоджия

1 балкон

Вид из окон

На улицу и двор

Ремонт

Косметический

Продаётся с мебелью

Да

О доме

Год постройки

1972

Строительная серия

II-49

Количество лифтов

2 пассажирских

Тип дома

Панельный

Тип перекрытий

Железобетонные

Подъезды

16

О подъезде

Есть мусоропровод

Отопление

Центральное

Аварийность

Нет

Газоснабжение

Центральное

Юридические особенности

Несовершеннолетние собственники

Нет

Материнский капитал при покупке

Не использовался

Спросите умного помощника
Получите экспертное мнение о жилье
Информация из Росреестра
Обременения
Нет
Площадь
57,9 м²
Этаж
9
Собственников
1
Кадастровый номер
77:05:0008002:***

Расположение

Ипотечный калькулятор
  • Базовая
  • Семейная
  • ИТ-ипотека
  • 20%
  • 30%
  • 40%
  • 50%
лет
  • 10 лет
  • 20 лет
  • 30 лет
Загружаем предложения от застройщика и банков
Зимой будет тепло
Дома такой же серии обычно хорошо сохраняют тепло
7
СобственникID 235317
    16 900 000 ₽
    Эксперт от ЦианаПомощь с поиском и сделкой
    Цена за метр
    291 883 ₽/м²
    Условия сделки
    свободная продажа
    Ипотека
    возможна
    СобственникID 235317