Мы используем куки-файлы. Соглашение об использовании
ЗабронированаОт застройщика

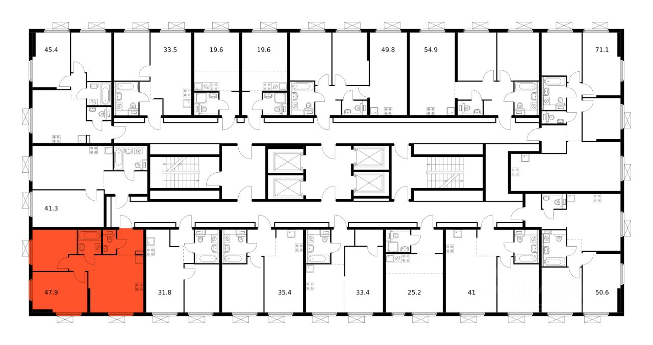
Продается 2-комн. квартира, 47,9 м²

Транспортная доступность 6,8 из 10Подробнее
Общая площадь47,9 м²
Жилая площадь21,2 м²
Площадь кухни16,8 м²
Этаж28 из 33
Год сдачи2026
ДомСдан
ОтделкаЧистовая

Подробнее о квартире

Продаётся 2-комн. квартира площадью 47,9 кв.м на 28 этаже 33 этажного дома (Корпус 1.3, Секция 1) проекта ПИК Первый Дубровский. Светлый просторный подъезд на уровне земли, функциональная планировка, большие окна, c отделкой. Первый Дубровский будет построен в Южнопортовом районе всего в 5 минутах пешком от станции метро "Волгоградский проспект". Дорога на автомобиле до Садового кольца займёт 7 минут, а до ТТК - 4 минуты. Проект задуман небольшим и уютным - в нём будет всего 4 корпуса с переменной высотой: 28, 33 и 38 этажей с подземным паркингом. Не территории мы построим детский сад на 150 малышей и школу для 350 учеников. А во дворе - зелёный парк с детскими и спортивными площадками и зонами для отдыха. На первых этажах откроются магазины, кафе и другие сервисы. Южнопортовый район - приятное место для жизни и отдыха. Здесь есть множество детских садов, вузы и школы. Для прогулок подойдут уютные парки и пруды, а для развлечений - парк развлечений "Остров Мечты", различные спортивные центры и комплексы. В проекте предусмотрена медленная зона для электросамокатов — с 7 утра до полуночи при въезде на территорию квартала скорость электросамокатов автоматически снижается до 15 км/ч. Артикул 890896 (Застройщик ООО Специализированный застройщик "ДРСУ-34")

О квартире

Тип жилья

Новостройка

Общая площадь

47,9 м²

Жилая площадь

21,2 м²

Площадь кухни

16,8 м²

Высота потолков

2,6 м

Санузел

1 раздельный

Вид из окон

На улицу и двор

Отделка

Чистовая

О доме

Количество лифтов

4 пассажирских

Тип дома

Монолитный

Парковка

Подземная

Понравилась квартира — узнайте о ней больше

Застройщик ответит на все вопросы

Отделка квартиры

Чистовая: ремонт сделан, остаётся расставить мебель и заселиться

О ЖК «Первый Дубровский»

  • Сдача комплекса
    Сдан
  • Застройщик
    ПИК
  • Класс
    Комфорт
  • Тип дома
    Монолитный
  • Парковка
    Подземная
  • Отделка
    Чистовая
  • Тип комплекса
    Жилой комплекс

Особенности жилого комплекса

  • Отделка

  • Парковка

  • Внутренний двор

  • Парки

  • Архитектура

  • Входная группа

  • Лифт

Подробнее о жилом комплексе

Акции в ЖК «Первый Дубровский»

Узнайте про персональные условия и дополнительные скидки при покупке квартиры у застройщика
Ипотечный калькулятор
  • Базовая
  • Семейная
  • ИТ-ипотека
  • 20%
  • 30%
  • 40%
  • 50%
лет
  • 10 лет
  • 20 лет
  • 30 лет
Загружаем предложения от застройщика и банков
Корпус проверен наш.дом.рф
Обновлено 2 апреля 2026
  • Нет в реестре проблемных объектов
  • Застройщик не банкрот

Ещё квартиры в жилом комплексе

90 квартир в продаже · Сдан
ЗастройщикПИК
Год основания: 1994
Строится: 289 домов в 60 ЖК
22 762 080 ₽
Цена за метр
475 200 ₽/м²
Условия сделки
долевое участие (214-ФЗ)

Квартира забронирована

Застройщик может записать вас в очередь или подобрать похожую