Мы используем куки-файлы. Соглашение об использовании
С мебелью

Продается 3-комн. квартира, 77 м²

Общая площадь77 м²
Жилая площадь41,7 м²
Площадь кухни9,4 м²
Этаж7 из 25
Год постройки2019
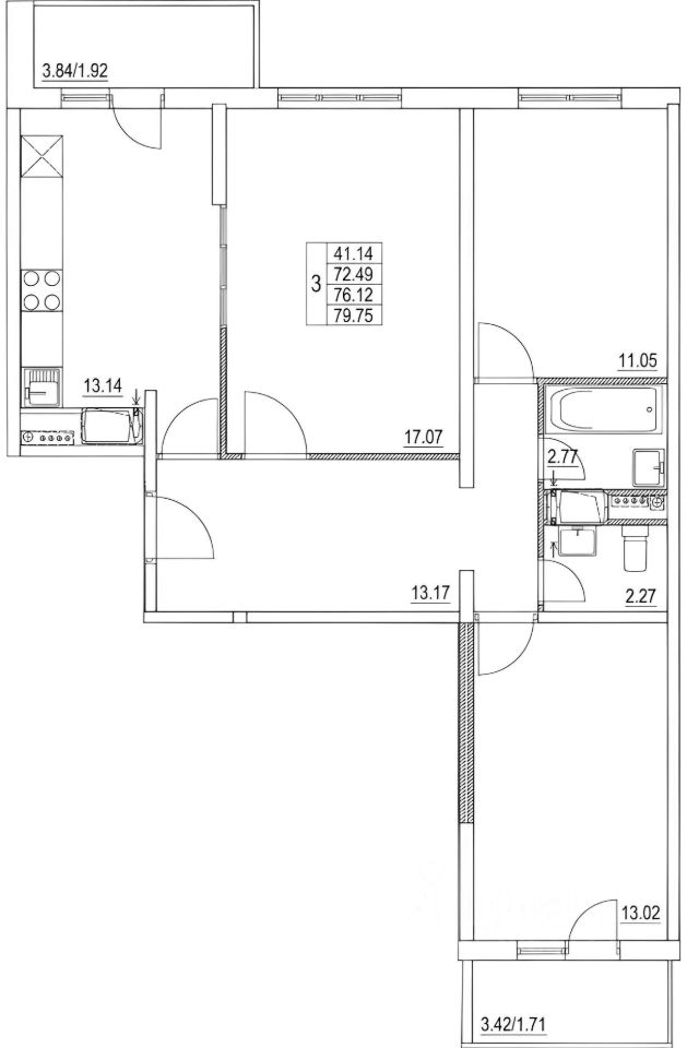
Номер лота: 91847. Продаётся просторная 3-комнатная квартира в современном жилом комплексе на Муравской улице, 42к1. Общая площадь составляет 76,8 м² (с учётом балкона и лоджии), без учёта — 67,6 м². Жилая площадь — 41,7 м². Квартира расположена на 7 этаже 25-этажного дома, построенного в 2019 году. Функциональная планировка: окна выходят на две стороны — во двор и на парк. Изолированные комнаты: - гостиная 16,3 м² с выходом на балкон; - спальня 12,3 м² с утеплённой лоджией и видом на парк; - спальня 13,1 м²; - кухня 9,4 м². Санузел раздельный, просторный холл. Встроенная мебель остаётся новому покупателю, остальная — по согласованию. Ухоженная входная группа, 2 лифта — грузовой и пассажирский. Входные группы сквозные, выходят на обе стороны дома. Инфраструктура: Благоустроенная территория: спортивные площадки с тренажёрами, зоны отдыха, детский сад, строящаяся школа. На первых этажах расположены магазины, кафе, аптеки, пункты выдачи заказов, а также сетевые продуктовые супермаркеты. Множество дошкольных учреждений, ресторанов, поликлиник и банков. В шаговой доступности находится парк, в котором предусмотрено все необходимое для активного отдыха и комфортного проведения досуга. По границе жилого комплекса протекают река Сходня и Рождественский ручей. Удобная транспортная доступность: рядом с домом остановка общественного транспорта (5 минут на автобусе до метро "Пятницкое шоссе"), а также удобный выезд на Пятницкое шоссе и МКАД. Документы: ДКП 2021 года. Помощь в одобрении ипотеки на выгодных условиях. Безопасность сделки обеспечена Стандартами Работы Гильдии Риелторов Москвы. Оперативный показ и быстрый выход на сделку! Уважаемые коллеги и покупатели, ждём на просмотр!
Позвоните автору
Вам ответят на все вопросы

О квартире

Тип жилья

Вторичка

Общая площадь

77 м²

Жилая площадь

41,7 м²

Площадь кухни

9,4 м²

Высота потолков

2,7 м

Санузел

1 раздельный

Балкон/лоджия

1 лоджия, 1 балкон

Вид из окон

На улицу и двор

Ремонт

Евроремонт

Продаётся с мебелью

Да

О доме

Год постройки

2019

Количество лифтов

1 пассажирский, 1 грузовой

Тип дома

Панельный

Тип перекрытий

Железобетонные

Подъезды

7

О подъезде

Есть мусоропровод

Парковка

Наземная

Отопление

Центральное

Аварийность

Нет

Спросите умного помощника
Получите экспертное мнение о жилье
Планировка этой квартирыПо данным Циан
Планировка этой квартиры по данным Циан

Расположение

Ипотечный калькулятор
  • Базовая
  • Семейная
  • ИТ-ипотека
  • 20%
  • 30%
  • 40%
  • 50%
лет
  • 10 лет
  • 20 лет
  • 30 лет
Загружаем предложения от застройщика и банков
РиелторHomeapp
5,0・2
Суперагент
24 000 000 ₽
Эксперт от ЦианаПомощь с поиском и гарантия безопасной сделки
Цена за метр
311 688 ₽/м²
Условия сделки
свободная продажа
Ипотека
возможна
Агентство недвижимости
На Циан
10 лет
Объектов в работе
212
Риелтор
Суперагент
5,0・2