Мы используем куки-файлы. Соглашение об использовании
С мебелью

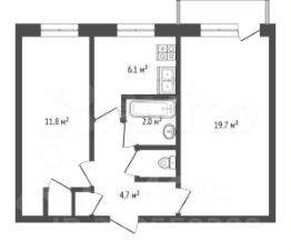
Продается 2-комн. квартира, 43 м²

Общая площадь43 м²
Жилая площадь28 м²
Площадь кухни5 м²
Этаж2 из 5
Год постройки1970
Агентам!!!. Без обид.Здравствуйте. Договора с агентствами не заключаю. Комиссию платить не готов. Мне на руки полная сумма. Продаётся уютная 2-комнатная квартира в кирпичном доме 1970 года постройки. Общая площадь — 43 кв. м, жилая — 28 кв. м, кухня — 5 кв. м. Квартира расположена на 2 этаже 5-этажного дома. Высота потолков составляет 2,5 метра, что создаёт ощущение пространства. Для вашего удобства в квартире есть балкон, окна выходят во двор, что гарантирует тишину и спокойствие. В прошлом году была замена стеклопакетов. Квартира с косметическим ремонтом, что позволяет вам сразу заехать и жить. Интерьер просторный и светлый, комнаты удобной планировки. Санузел раздельный, что особенно удобно для семейного проживания. Дом в хорошем состоянии, ухоженные подъезды и общие зоны. Придомовая территория благоустроена, есть возможность для парковки автомобиля. Благодаря материалу постройки, дом тёплый и надёжный. Расположение квартиры также приятно удивит — всего 8 минут пешком до станции метро Зеленоград — Крюково. Вокруг дома есть все необходимое для комфортной жизни: школы, детские сады, магазины и клиники. Отличная инфраструктура и транспортная доступность делают это предложение особенно привлекательным. С юридической точки зрения квартира полностью готова к продаже. Документы проверены, обременений нет. Возможна покупка в ипотеку, что значительно расширяет ваши возможности. Не упустите шанс стать владельцем этой замечательной квартиры! Записывайтесь на просмотр, будем рады показать вам ваш будущий дом. Дом попадает под реновацию. Что даёт в будущем получить квартиру в новом доме с большей площадью. А также приобрести машиноместо по льготный цене. Можно докупить дополнительную площадь или еще квартиру по льготный ставке. У Реновации масса привелегий. Квартира пригодна для проживания до сноса. Либо выгодно сдавать, до получения квартиры в новом доме
Дом под сносПо результатам голосования жильцов дом включен в программу реновации и будет снесен
Позвоните автору
Вам ответят на все вопросы

О квартире

Тип жилья

Вторичка

Общая площадь

43 м²

Жилая площадь

28 м²

Площадь кухни

5 м²

Высота потолков

2,5 м

Санузел

1 раздельный

Балкон/лоджия

1 балкон

Ремонт

Косметический

Перепланировка

Не было

Продаётся с мебелью

Да

О доме

Год постройки

1970

Строительная серия

1-447

Тип дома

Кирпичный

Тип перекрытий

Железобетонные

Подъезды

8

Отопление

Центральное

Аварийность

Нет

Юридические особенности

Несовершеннолетние собственники

Нет

Материнский капитал при покупке

Не использовался

Спросите умного помощника
Получите экспертное мнение о жилье

Расположение

Ипотечный калькулятор
  • Базовая
  • Семейная
  • ИТ-ипотека
  • 20%
  • 30%
  • 40%
  • 50%
лет
  • 10 лет
  • 20 лет
  • 30 лет
Загружаем предложения от застройщика и банков
Зимой будет тепло
Дома такой же серии обычно хорошо сохраняют тепло
7
СобственникID 140914893
  • Предоставил паспорт
16 000 000 ₽
Эксперт от ЦианаПомощь с поиском и гарантия безопасной сделки
Цена за метр
372 093 ₽/м²
Условия сделки
свободная продажа
Ипотека
возможна
СобственникID 140914893
  • Предоставил паспорт