Мы используем куки-файлы. Соглашение об использовании
Только на ЦианПроверено в Росреестре
Общая площадь188 м²
Участок6 сот.
Материал домаКирпичный
Этажей в доме2
Год постройки2022
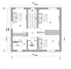
Продается дом без внутренней отделки. Состоит из двух этажей . Первый этаж: просторная кухня- гостиная (45,4 м.кв) с выходом на терасу, спальня, санузел, прихожая комната ( 18м.кв) и котельная. На втором этаже три спальни (25,6-19,3-19,6 м.кв), гардеробная комната и санузел. Из два входа в дом . Центральный и в гостиную .Дом построен из качественных строительных материалов. По индивидуальному проекту. Фундамент: сваи, лента и плита. Стены : керамический блок, утеплитель и облицовочный клинкерный кирпич , окна REHAU с качественной фурнитурой и с теплосберегающими стеклопакетами. Крыша из качественной металла черепицы с гарантией на 25 лет. На все строительные материалы есть сертификаты качества. Дом расположен в поселке бизнес-класса Елизарово-парк. В поселке круглосуточная охрана, по периметру поселка видеонаблюдение, въезд в поселок только по пропускам. На территории поселка есть детская площадка. В поселке есть крупный пруд с местами для рыбной ловли. В 5 минутах езды находится поселение Первомайское, обладающее полноценной городской инфраструктурой: детский сад, школы, магазины, аптеки. Удобное транспортное сообщение. Быстрый выход на сделку. Показ в любое удобное для вас время! Мы оказываем помощь в оформлении ипотеки на выгодных для вас условиях.
Позвоните автору
Вам ответят на все вопросы

О доме

Площадь

188 м²

Материал дома

Кирпичный

Состояние дома

Нужен ремонт

Количество этажей

2

Количество спален

4

Год постройки

2022

Об участке

Площадь

6 сот.

Категория земель

Земли населённых пунктов

Статус участка

Индивидуальное жилищное строительство

Коммуникации и удобства

Санузел

2 в доме

Канализация

Центральная

Водоснабжение

Центральное

Отопление

Центральное газовое

Электричество

Есть

Газ

Газгольдер

Дополнительно

Охрана

Спросите умного помощника
Получите экспертное мнение о жилье

Информация из Росреестра

Кадастровый номер участка 50:26:0180612:*** указал продавец

Данные получены 13 декабря 2024 года

Oб участке
Категория земель
Земли населенных пунктов
Разрешённое использование
под застройку жилыми зданиями, объектами культурно-бытового и социального назначения
Обременение
Heт сведений
Читать дальше

Расположение

Подпишитесь на объявления в этой локации
Мы сообщим, как только поблизости появится что‑нибудь новенькое
Ипотечный калькулятор
  • Базовая
  • Семейная
  • ИТ-ипотека
  • 20%
  • 30%
  • 40%
  • 50%
лет
  • 10 лет
  • 20 лет
  • 30 лет
Загружаем предложения от застройщика и банков
Хотите продать недвижимость?Разместите объявление на ЦианРазместить
25 000 000 ₽
Эксперт от ЦианаПомощь с поиском и гарантия безопасной сделки
Цена за метр
132 979 ₽/м²
Ипотека
возможна
Агентство недвижимости
Суперагент