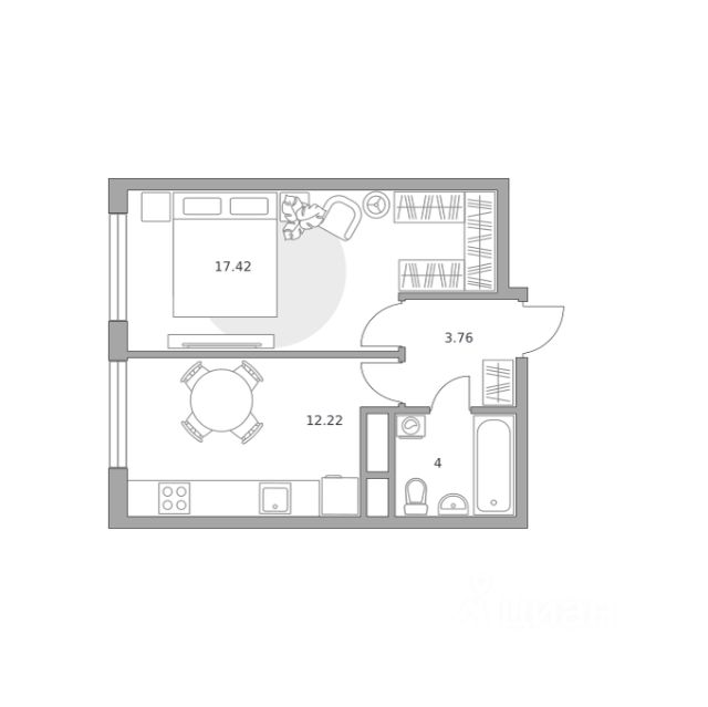
Продается 1-комн. квартира площадью 34,4 кв.м на 12 этаже 24 этажного дома в ЖК "Союзный" от федерального девелопера ГК "Вектор".
Расположение, транспортная доступность
Жилой комплекс "Союзный" — это квартал из 6 монолитных домов комфорт-класса высотой до 25 этажей, строящийся в 8-ом микрорайоне города Одинцово на улице Маковского. В продаже квартиры площадью от 37,2 до 88 кв. м, с потолками высотой 2,7 м, лоджиями, 2-мя санузлами в квартирах с 3-мя комнатами. Квартиры без отделки и с отделкой эконом, бизнес или комфорт класса. Квартал располагается на территории с отличной транспортной доступностью:
- 8 км от МКАД;
- 15 минут пешком до станции "Одинцово" МЦД-1;
- рядом находится автобусная остановка, от которой можно доехать до метро "Парк Победы", "Киевская", "Юго-Западная";
На личном автотранспорте доехать от комплекса по Минскому шоссе к новой развязке с МКАД можно примерно за 20 минут. В качестве альтернативы можно выбрать Можайское шоссе. Даже в час пик передвигаться по нему можно со скоростью 50 км/ч. Кроме того, можно выбрать платную трассу Северный обход Одинцово. Путь от квартала до Северо-Западной хорды на автомобиле займет 25-35 минут, а до ТТК и Садового кольца - 1 час.
В квартале запланировано строительство торгового центра, детского сада на 245 мест (сдача - 4 кв 2025 г.), многоуровневой открытой стоянки на 257 автомобилей, многоуровневого подземного паркинга, наземно-подземного паркинга с эксплуатируемой кровлей и других объектов. На внутренней территории квартала разместятся детский игровой комплекс с резиновым покрытием, спортплощадка, зоны отдыха для взрослых, деревья, кустарники и газоны. В шаговой доступности от ЖК "Союзный" располагаются школа, детский сад, профучилище, несколько ТЦ, кинотеатр "Юность", Ледовый дворец, сквер Союзный, Глазынинский пруд с качелями и площадкой для хоккея. В районе ЖК нет промышленных производств, а совсем близко начинаются лесные массивы, занимающие площадь свыше 70 000 га. Этот район считается одним из самых экологически чистых в Подмосковье.*