


415 428 ₽/м²
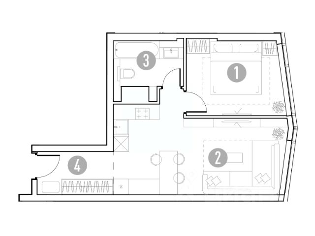
Продается однокомнатная квартира без отделки в девятиэтажном монолитном доме жилого комплекса "Резиденции Сколково". Общая площадь квартиры - 44,3 кв. м, этаж 5 из 9. Срок сдачи - 3 квартал 2026 года. ТОЛЬКО ДО 30 АПРЕЛЯ выгодные условия на приобретение квартиры в ипотеку или рассрочку. Звоните - и мы подберем оптимальное предложение под ваш запрос! ЖК "Резиденции Сколково" - это современный проект бизнес-класса, расположенный в престижном районе Сколково, у западной границы Москвы. Транспортная доступность: - 0 км от МКАД - 10 минут на личном авто до метро "Озёрная" Солнцевской линии - 15 минут на личном авто до Москва-Сити по Кутузовскому проспекту - 20 минут на личном авто до центра по проспекту Генерала Дорохова - 24 минут на личном авто до центра по Мичуринскому проспекту Безопасность: Огороженная, закрытая территория, круглосуточное видеонаблюдение, контроль доступа во внутренний двор. Благоустройство и инфраструктура: Масштабное озеленение в концепции "двора-парка" и множество площадок отдыха для взрослых и детей. В 5 минутах ходьбы расположен Мещерский лесопарк. В жилом комплексе уже построены и работают 2 муниципальных детских сада с бассейном, планируется строительство 1 школы. В непосредственной близости - частные и муниципальные детские сады и школы, кафе и рестораны, продуктовые магазины, салоны красоты и другие готовые объекты городской инфраструктуры. Авторская архитектура: Авторская концепция архитектуры, входные группы на уровне земли. Для удобства жителей на первых этажах предусмотрены помещения для колясок и на -1 этажах для хранения велосипедов.






































































































