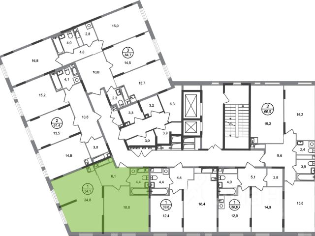
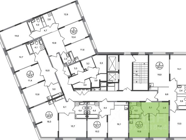
Предлагаем вашему вниманию просторную и светлую однокомнатную квартиру с готовой отделкой. у застройщика такой вариант 15 587 Это ЕДИНСТВЕННОЕ УНИКАЛЬНОЕ ПРЕДЛОЖЕНИЕ на рынке в нашем жилом комплексе. ЗВОНИТЕ!!!
Квартира Подходит под ипотеку, готовы оказать содействии при одобрении и оформлении данный объект в ипотеку.
Отличная транспортная доступность: рядом ВСЁ. 15 минут пешком до ст. МЦД 2 "Щербинка" - 50 минут до центра Москвы. 18 мин. на автобусе / маршрутке до ст. метро "Улица Скобелевская". Через 5 лет открывается новая станция метро "Щербинка" Сокольнической и Бирюлевской линий.
Остановки автобусов - в 50 метрах от дома. Удобный выезд на Варшавское и Симферопольское шоссе, МКАД.30 минут на авто до ТТК.
Квартира передается чистовой отделкой, только современные материалы: настенная и напольная керамическая плитка в санузлах, обои под покраску, ламинат, плинтусы, натяжные потолки со светильниками. Вам понадобится минимум времени для того, чтобы сразу переехать в новую квартиру и жить. Готовая отделка выполнена в нейтральных тонах — с такой сочетается любая мебель. Стены будут оклеены белыми обоями — если захотите, их легко перекрасить в любой другой цвет. В квартире подготовлено место под кондиционер с аккуратно спрятанными коммуникациями. В ванной комнате и санузле также будет всё готово для того, чтобы заезжать сразу после получения ключей. В квартире есть всё для установки климат-системы: выполнена разводка дренажа, трасс фреона и электрокабеля. Наружный блок устанавливается в корзине на фасаде — останется подключить кондиционер к готовым коммуникациям и наслаждаться комфортом.
В ЖК вы будете проживать в приличными, интеллигентными соседями. Просторные лобби (вместительные колясочные, пункт охраны, туалет для удобства жителей и гостей квартала, лапомойка для четвероногих членов семьи), подземный паркинг и кладовые помещения. Закрытие дворы-парки: тихо и уютно, много зелени и нет машин.
Система умный дом: на входе в подъезды установлены домофоны с видеокамерами и системой автоматического распознавания лица, автоматический сбор данных со счётчиков, камеры во дворах, в подъездах и в паркингах. Управлять системой можно с мобильного приложения из любого места, где есть интернет.
ЖК обеспечен всей необходимой инфраструктурой: коммерческие помещения, в пешей доступности три детских сада, две школы, поликлиника, театры и кинотеатры, различные магазины, кафе, химчистка, салон красоты, отделения банков, компании сферы услуг, пекарня, салоны красоты, комьюнити-центр и многое другое всё в пешей доступности.