


Только на Циан
4 490 000 ₽
87 354 ₽/м²
Уютная, светлая квартира с земельный участком - альтернатива загородному дому
Продаётся 2-комнатная квартира с участком земли 3 сотки (входит в стоимость) в деревне Кошелево, рядом с г. Талдом. Это одно из самых чистых и экологичных мест рядом с Москвой.
Инфраструктура в шаговой доступности:
• Магазины: Магнит, хозяйственный, Wildberries, Ozon.
• ФАП (фельдшерско-акушерский пункт).
• Школа, детский сад, Дом культуры, действующий храм.
• Центральное отопление (по заявкам жителей), стабильные свет, газ, вода и интернет.
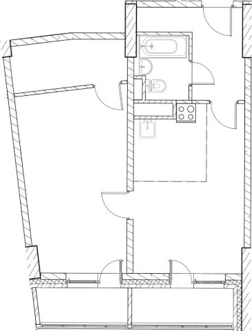
О квартире:
• Планировка распашонка — удобно проветривается.
• Квартира светлая, сухая, тёплая.
• Раздельный санузел.
• Чугунные батареи, большие пластиковые трёхстворчатые окна.
• Две просторные лоджии по 3,5 м² — окна выходят во двор и на улицу. Виден храм и слышен звонок колоколов по утрам.
• Сделан свежий капитальный ремонт: заменена электропроводка и розетки, водосточные трубы, выполнена стяжка полов под ключ, сверху ламинат и плитка, стены выровнены по маякам, натяжные потолки с датчиками движения.
Возможна прописка в Московской области.
В квартире остаётся вся новая бытовая техника: стиральная машина, кухонная плита, водонагреватели, холодильник.
Земельный участок:
Участок 3 сотки всего в 2 минутах от дома. На участке плодовые деревья, кустарники, колодец и бытовка. Подходит для сада, небольшого огорода или просто отдыха на свежем воздухе.
Квартира с землёй — удобное решение для тех, кто хочет жить ближе к природе, но без хлопот по содержанию большого дома.
Добраться из Москвы можно на общественном транспорте: на электричке Савёловского направления до Талдома, дальше на автобусе до деревни Кошелево (ходят регулярно). Также в районе много такси Яндекс.
Продавать квартиру вынуждают личные обстоятельства.
Я единоличный собственник Купить 2-комнатную квартиру до 4,6 млн. рублей в Московской области.























































































































