


644 735 ₽/м²
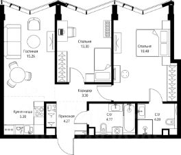
Прямая продажа от застройщика. Продаётся 2-комнатная квартира общей площадью 54.69 м² без отделки в доме премиум-класса МИРА на 8-м этаже 24 этажного дома. Квартира расположена в корпусе 3. Дом премиум-класса МИРА это: • Спокойный район с богатой историей и сложившейся инфраструктурой • Авторская архитектура на стыке классики и современности • Вход в парк прямо из жилого комплекса • Панорамные виды на Яузу, парки, ВДНХ и скульптуру "Рабочий и колхозница" • Удобные сервисы и безопасность для каждого резидента Расположение: Жилой квартал расположен в Алексеевском районе на северо-востоке Москвы, на второй линии домов, таким образом вы сможете дистанцироваться от шума и суеты проспекта Мира, но при этом будете жить недалеко от этой важной городской магистрали. Прямо у дома: • Парк Акведук • Река Яуза • Памятник "Рабочий и колхозница" Пешком: • 16 мин м. ВДНХ На автомобиле: • 12 мин ТТК • 15 мин Садовое кольцо • 12 мин Национальный парк "Лосиный остров" Благоустройство: Концепция благоустройства от бюро "ДРУЖБА" разработана в стиле "Лесная тропа". В уютном дворе расположились словно затерянные в лесу, площадки для отдыха. Они разделяются островками с травами, кустарниками, крупными камнями и деревьями, между которыми проходят узкие песчаные тропинки с деликатной подсветкой по вечерам. Центральной точкой притяжения для жителей станет главная площадь с фонтаном, которая открывается сразу из двух входных групп. Внутренний двор МИРА: • Детская площадка с зонами для игр малышей до трех лет и детей более старшего возраста • Спортивная площадка с профессиональным оборудованием для тренировок • Декоративные перголы • Воздушный арт-объект с подсветкой, похожий на облако • Чайный домик, где в отдельном отапливаемом павильоне можно в любое время года попить кофе с соседями или устроить камерное семейное чаепитие • Зоны для работы и отдыха с гамаком под навесом, скамейками и креслами Инфраструктура и окружение: В Алексеевском районе есть огромные благоустроенные парки, магазины, гимназии с высоким рейтингом и филиалы ВУЗов, частные и государственные детские сады, модные кофейни и фитнес-центры. В квартале МИРА предусмотрены: • 2 ресторана с видом на парк Акведук • 3 кафе • фитнес-студия • подземный паркинг на 330 машино-мест Компания MR предлагает своим клиентам специальные условия приобретения квартир в рамках программ ипотечного кредитования от банков-партнеров.





































































































































































