


719 239 ₽/м²
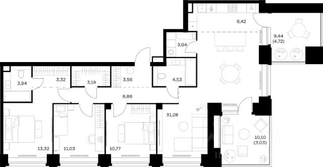
Комфортная и продуманная до мелочей 3-спальная квартира площадью 92.20 кв. м на 12 этаже в клубном доме 3939256 (14). Увеличенная площадь окон и высота потолков 3.22 м дарят впечатляющие виды на парки, зеленые зоны и природные заказники. West Garden - это собрание клубных домов высотой 12-14 этажей в собственном парке 16 гектаров вдоль реки. Просторный среднеэтажный квартал расположен на Минской улице, в респектабельном Западном округе столицы. Вокруг премиальное окружение и более 1000 гектаров парков. West Garden - это возможность обеспечить себе и своей семье лучшие условия для жизни в одном из самых привлекательных и зелёных районов столицы. Гармония природы дополнена здесь впечатляющими возможностями и привилегиями: • Расположение в зелёном Западном районе столицы вблизи центра и ключевых магистралей в окружении парковых зон (заказник "Долина реки Сетунь", Мосфильмовский пруд, Ботанический сад МГУ, природный заказник "Воробьёвы Горы", Парк Победы на Поклонной горе) • Современная лаконичная архитектура, у каждого дома свой индивидуальный облик и выразительный фасад с использованием натуральных и долговечных материалов (гранит, известняк, клинкерный кирпич) • Функциональные лобби с отделкой из дерева и натурального камня с высокими потолками до 7,8 м • Самый большой собственный парк для прогулок и отдыха: 8 га собственной закрытой и благоустроенной территории, а также 8 га прилегающего парка на набережной с зонами отдыха с шезлонгами, маршрутами для бега, пеших и велосипедных прогулок • Инфраструктурный центр Clubhouse только для жителей: клубная гостиная с террасой и творческой атмосферой по фирменному стандарту Friend`s Lab, детская игровая зона 300 кв. м по стандарту Kid`s Lab • Насыщенная и разнообразная инфраструктура для детей любого возраста: 8 развивающих детских площадок в парке, 3 детские площадки на благоустроенной набережной, площадка для отдыха и досуга подростков • Спортивная инфраструктура по стандарту Fit Lab: многофункциональные площадки для футбола, баскетбола, волейбола с трибуной для болельщиков, зона воркаута, теннисные столы, зона для йоги, беговая дорожка 3 километра, фитнес-центр только для жителей • Комфортный и просторный подземный паркинг на 1313 машино-мест, 482 келлера, автомойка только для жителей на четыре поста

















































































































