


2 670 500 ₽/м²
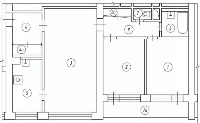
Квартира общей площадью 276,3 м2 расположена на 3-м этаже жилого дома "Никитский 6". Из окон открывается вид на тихий Нижний Кисловский переулок. Планировочное решение включает панорамную кухню-гостиную, 3 мастер-спальни с личными ванными и гардеробными комнатами и сервисные помещения. Во всех квартирах предусмотрена высококачественная авторская отделка с кухонной мебелью, бытовой техникой и полностью оборудованными душевыми и ванными комнатами. В интерьере предложены природные оттенки и натуральные премиальные материалы: дерево, различные породы камня, элементы металла. Интеграция ультрасовременных инженерных систем с элементами управления smart home и multiroom. "Никитский 6" расположен в одном из культовых районов столицы — на Арбате, на пересечении Никитского бульвара и улицы Воздвиженка. В пешей доступности от дома находятся всемирно известные культурные достопримечательности, образовательные учреждения, зеленые бульвары для прогулок, модные рестораны и бутики Никитской улицы и всего пять минут до Александровского сада. Для дополнительного комфорта резидентов "Никитский 6" предусмотрена клубная инфраструктура: просторное комфортабельное лобби, зал для частных занятий йогой и пилатесом, библиотека и пространство для деловых встреч. На трех подземных уровнях дома расположен просторный паркинг с увеличенными габаритами машино-мест, скоростными зарядками для электромобилей, storage-rooms и сервисными помещениями для персонала. Элитное жилье - квартира на бульваре Никитский в Москве.


























































































































