Первичная продажа
Онлайн-бронирование
сдача ГК: 4 кв. 2026 года
Марьино
6 минут на транспорте
28 195 404 ₽
442 628 ₽/м²
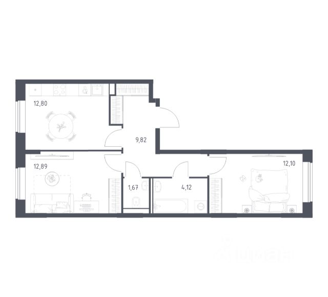
Строим кварталы для жизни с заботой о будущем. Предлагается 2-комнатная квартира комфорт-класса площадью 63.7 кв.м в корпусе 2 (3 очередь) на 7-м этаже, в жилом комплексе "Квартал Домашний".
Застройщик сдает квартиры с отделкой в нескольких вариантах: предчистовая, готовая или вариант без нее. Последний подойдет тем, кто хочет создать свой уникальный интерьер и ничем себя не ограничивать.
А если не хочется тратить время на ремонт, можно выбрать опцию - с отделкой. Перед тем как отдать ключи, застройщик установит натяжные потолки, поклеит обои под покраску, положит ламинат светлых тонов, а в санузлах - керамическую плитку и керамогранит.
Приобрести квартиру возможно по специальным акциям от застройщика, с текущими условиями акций можно ознакомиться в блоке "Акций".
Цена динамическая и может отличаться, уточняйте актуальность у застройщика.
"Квартал Домашний" находится в Марьино - всего 7 минут пешком до МЦД-2 "Курьяново". Рядом с домом - набережная Москвы-реки. Внутренняя инфраструктура проекта продумана до мелочей: от супермаркетов до кафе и салонов красоты. В "Квартале Домашнем" можно выбирать свою высоту - в комплексе есть корпуса от 7 до 19 этажей. Среди планировочных решений - просторные кухни-гостиные, гардеробные, постирочные, лоджии и угловые окна.
"Квартал Домашний" - это:
1. До станции МЦД-2 "Курьяново" - 7 минут пешком
2. До станции метро "Марьино" - 7 минут на машине
3. До парка 850-летия Москвы - 5 минут пешком
4. До парка "Борисовские пруды" - 15 минут на машине
5. До музея-заповедника "Царицыно" - 20 минут на авто
6. Музей-заповедник "Коломенское" - для фотосессий и прогулок
7. Европейская архитектура с фасадами природных оттенков: песочного, серого, зеленого, терракотового
8. Школа со стадионом, 2 детских сада - на территории квартала
9. Магазины, кафе и салоны красоты на первых этажах домов
10. Приватные дворы без машин
11. Подземный паркинг с местами для электрокаров и индивидуальные кладовые
12. Спортивные и игровые площадки
13. В планах построить школу со стадионом и 2 детских сада



















































































