


258 636 ₽/м²
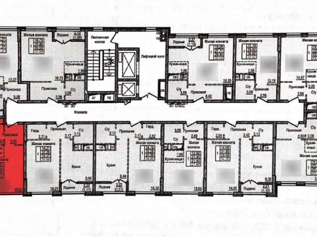
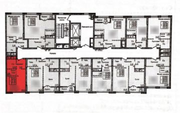
Старт продаж! Продается студия в новом клубном жилом комплексе "Павлово 3" площадью - 29.90 кв. м на 2 этаже, в корпусе 1 в малоэтажном монолитном доме от компании-застройщика. Из окон, а также с балкона, открывается отличный вид. В квартире высокие потолки 3.25 м, что дает ощущение простора. Преимуществом также является большой санузел. "Павлово 3" - премиальный уровень комфорта загородной жизни в бизнес-классе. Выбирайте камерный квартал, он станет лучшим домом для каждого, кто ценит приватность и комфорт. Срок сдачи - 2 квартал 2027. Более подробная информация по телефону. Особенности комплекса: • Высота потолков в каждой квартире - от 3 метров; • Собственный детский сад; • Авторская концепция озеленения; • МЦД-2 "Нахабино" в 5 минутах езды; • Садовое кольцо в 35 минутах езды • Локация с насыщенной инфраструктурой столичного уровня: торговые центры, кафе, рестораны, учебные заведения, развлекательные и спортивные объекты. Расположение Клубный жилой комплекс бизнес-класса "Павлово 3" возводится в экологически чистом районе престижного северо-западного направления Москвы. Здесь природа и атмосфера спокойствия соседствуют с комфортом современного мегаполиса. 7 трехэтажных корпусов, выполненных в едином современном стиле, формируют уютную камерную атмосферу. Архитектура На первых этажах домов - просторные и функциональные входные группы, где предусмотрено все: мягкий интерьер в природных тонах, дизайнерская отделка натуральным деревом и камнем, панорамные окна с видом на лес, помещения для хранения колясок и спортивного инвентаря, а также специальные подъемники для маломобильных жителей. Благоустройство "Павлово 3" - это 6 га приватной охраняемой территории, 2 км прогулочных дорожек вдоль леса, 19 зон для тихого и активного отдыха и 3963 деревьев и цветущих кустарников, высаженных непосредственно на территории комплекса. Чтобы оказаться наедине с природой теперь достаточно пары минут пешком. Для жителей "Павлово 3" создан собственный выход в лес, благоустроены лаунж-зоны на свежем воздухе и гармонично вписаны в ландшафт ливневые сады. Здесь же появится барбекю-зона для уютных вечеров в кругу семьи и друзей. Инфраструктура Жителям доступна инфраструктура престижного района с известными ресторанами, спортивными клубами и рейтинговыми учебными заведениями. На территории клубного дома детям не придется скучать. В их распоряжении - 16 игровых площадок с инвентарем из природных безопасных материалов. А для поддержания здорового образа жизни предусмотрено 5 спортивных зон, включая воркаут-тренажеры, корты для мини-футбола, волейбола, падел-тенниса и баскетбола. Для гостей предусмотрен свой паркинг, а для владельцев электромобилей - зарядные станции. Количество машиномест равно количеству квартир. Вся территория оснащена системами безопасности и камерами видеонаблюдения, работает WI-FI. Купить квартиру-студию в новостройке в Московской области.























































































































































