245 359 ₽/м²
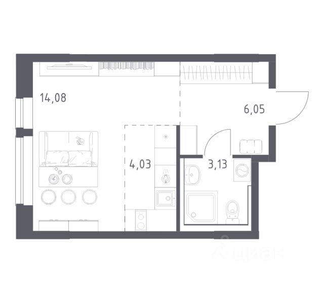
Строим кварталы для жизни с заботой о будущем. Предлагается студия комфорт-класса площадью 23,5 кв.м в корпусе 3.1 на 9-м этаже, в жилом комплексе "Егорово Парк". Квартиры комплекса — на выбор: могут быть как с отделкой, так и без. В случае с готовой отделкой в комнатах и прихожей уже будут обои, натяжные потолки и ламинат, а в санузлах — керамогранит на полу и керамическая плитка на стенах. Мы подведем все коммуникации и установим сантехнику. Помимо базовой отделки, вы можете дополнительно выбрать улучшенную версию. В ней используются износостойкие материалы, ударопрочные плинтуса, ламинат с фаской — все для долговечного использования. Приобрести квартиру возможно по специальным акциям от застройщика, с текущими условиями акций можно ознакомиться в блоке "Акций". Цена динамическая и может отличаться, уточняйте актуальность у застройщика. ЖК "Егорово Парк" — подмосковный жилой комплекс комфорт-класса на юго-востоке Подмосковья в 15 минутах на машине до МКАД.



















































































