


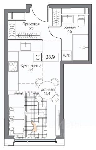
636 827 ₽/м²
Встречать утро с беззаботным настроением. Чувствовать дуновение освежающего бриза, видеть, как играют блики солнца на воде. Ощущение курорта на побережье, где каждая деталь призвана доставлять исключительный комфорт и радость. Прибрежный квартал Dream Riva — настоящее воплощение магической атмосферы. Полностью готовая инфраструктура престижного курорта "Остров мечты" в самом сердце Москвы на первой береговой линии. Всё, что нужно для размеренной жизни, работы, отдыха и развлечений. Начните жить в удовольствие здесь. Новая реальность Жить в Dream Riva — значит, осуществить мечту никуда не спешить и планировать свои будни так, как хочется. Преимущества, так щедро собранные в уникальной локации Острова мечты, подарят жителям роскошь личного курорта, наполняя дни самыми счастливыми впечатлениями. Уединённая и обособленная локация с невероятным парковым и ландшафтным массивом в 44 Га для прогулок, спорта, пикников и незабываемых вечеров с близкими. Комплексная готовая инфраструктура для развлечения, отдыха, шопинга и работы. Ежедневно открывать для себя что-то новое и при этом оставаться рядом с домом. Первая линия Москвы-реки с открытыми видами на воду и город. Благоустроенная набережная с гастропроменадом, которая станет частью городского прогулочного маршрута и соединит локацию с другими развлечениями столицы. Авторская архитектура в курортной концепции, воплощающей силу природных стихий в каждой детали оформления и благоустройства. Собственный приватный прибрежный парк размером 3 Га возле дома с зонами для спорта и йоги, открытым солярием вдоль береговой линии, многофункциональными детскими игровыми комплексами, местами для релакса, прогулок и времяпрепровождения всей семьей. Формат приватного досуга и эксклюзивные привилегии — клубная гостиная, детское кафе с игровой комнатой, lounge-бар, гостиничный премиальный сервис и приоритетный доступ к развлечениям — только для резидентов. Квартиры с разнообразным выбором планировок — для свободных людей и больших семей с детьми. Квартиры с опцией без отделки для воплощений смелых проектов и с дизайнерским интерьером для тех, кто готов уже завтра праздновать новоселье. Современные инженерные технологии квартала, которые сделают жизнь ещё удобнее и задают стандарт максимального комфорта.












































































































































































